钢构支架图纸讲解视频
温馨提示:这篇文章已超过470天没有更新,请注意相关的内容是否还可用!
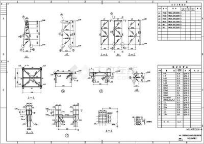
钢构支架图纸讲解视频旨在为建筑行业从业者提供关于如何阅读和理解钢结构支架图纸的专业指导。该视频将详细解释图纸中的各项内容,包括尺寸标注、材料说明、结构细节以及施工要求等,帮助观众准确解读图纸,确保施工过程中的顺利进行。通过视频学习,观众能够更好地掌握钢结构支架图纸的要点,提高施工效率和质量。

没有找到关于“钢构支架图纸讲解视频”的直接信息,但是找到了相关的图纸讲解途径:
- 钢结构图纸识图详解:钢结构图纸看起来比较复杂,各种符号箭头,如果是专业人士看应该一目了然,但非专业人士看这种图纸可能会一头雾水。
- 钢结构图纸入门视频教程:钢结构图纸入门视频教程,钢结构怎么看懂图纸路毅十六:1、型钢是由钢厂按照标准规格轧制而成的钢材,其断面形状如尺寸是定型的,例如:角钢、工字钢、槽钢等。
- CAD视频教程钢结构:上网易看看,上边有很多免费教学视频。
虽然没有直接的视频讲解,但可以通过上述途径来学习和理解钢构支架图纸的相关知识。




钢结构图纸符号含义解析
钢结构设计规范解读
CAD绘制钢结构实例教程
钢结构施工流程视频

还没有评论,来说两句吧...