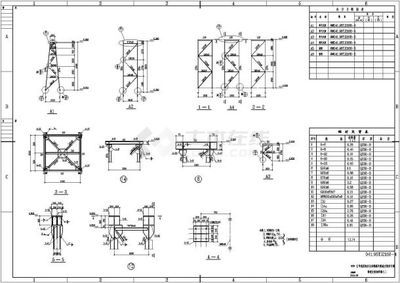
最新钢构支架图纸讲解视频 钢构支架图纸讲解视频旨在为建筑行业从业者提供关于如何阅读和理解钢结构支架图纸的专业指导。该视频将详细解释图纸中的各项内容,包括尺寸标注、材料说明、结构细节以及施工要求等,帮助观众准确解读图纸,确保施工过程中的顺利进行... 2026-05-13 2.97 K 阅读 0 评论 乌兰察布加固改造设计公司 结构桥梁钢结构设计
热文钢构支架图纸讲解视频(cad绘制钢结构实例教程cad绘制钢结构实例教程) 本视频教程详细讲解了如何使用AutoCAD软件绘制钢构支架图纸,介绍了钢构支架的基本概念和设计原则,然后展示了如何通过AutoCAD的绘图工具来绘制钢构支架的平面图、立面图和剖面图,在绘制过程中,特别强调了尺寸标注、... 2025-12-24 1.01 K 阅读 0 评论 红河哈尼族彝族自治州加固设计公司 全国钢结构厂