钢结构舞台施工图(钢结构舞台施工图指导)
温馨提示:这篇文章已超过377天没有更新,请注意相关的内容是否还可用!
钢结构舞台施工图是指导在建筑和表演艺术领域中使用钢结构进行舞台搭建的图纸。这些图纸详细描述了如何根据舞台的设计要求,使用钢材和其他材料来构建一个稳固、美观且具有功能性的舞台结构。,,钢结构舞台施工图通常包括以下内容:,,1. 舞台尺寸:明确指出舞台的宽度、长度、高度以及舞台与观众席之间的距离。,2. 舞台结构:描述舞台的框架结构,包括梁、柱、桁架等支撑结构的尺寸和位置。,3. 舞台板:展示舞台板的布局和设计,包括地板、侧墙和顶棚的材料和厚度。,4. 灯光系统:包括灯具的位置、电源连接点以及电缆的路径规划。,5. 音响系统:说明扬声器的位置、功率需求以及声学处理措施。,6. 安全设施:包括舞台边缘的安全栏杆、紧急疏散通道以及消防设备的布置。,7. 其他细节:如舞台的装饰、幕布、道具存放区等。,,钢结构舞台施工图对于确保舞台的安全性、稳定性和美观性至关重要,同时还需要考虑到经济性和可维护性。
钢结构舞台施工图
钢结构舞台施工图是指导钢结构舞台建设的重要技术文件,它包含了舞台的设计理念、结构布局、材料选用、施工方法等多个方面的详细信息。以下是根据搜索结果整理的关于钢结构舞台施工图的相关内容。
施工图的内容和用途
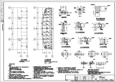
钢结构舞台施工图通常包括多种类型的图纸,如平面图、立面图、剖面图、节点详图等。这些图纸详细展示了舞台的尺寸、结构细节、材料规格以及施工要求。例如,某奥林匹克运动会舞台钢结构施工图就包含了钢结构设计说明、刚架木垫平面布置图、主舞台钢构平面布置图、仪式台钢构平面布置图、刚架立面布置图、节点详图等内容。这些图纸对于施工单位来说至关重要,它们提供了详细的施工指导,确保了施工过程的顺利进行和最终工程质量的保证。
施工图的获取途径
钢结构舞台施工图可以通过多种途径获取。一些专业的网站提供了大量的施工图供用户下载学习,例如土木在线(co188.com )就提供了多个钢结构舞台施工图的下载链接,涵盖了不同规模和功能的舞台设计。此外,一些专业的设计公司也会提供定制化的施工图服务,以满足特定项目的需求。
施工图的重要性
钢结构舞台施工图不仅是施工过程中的重要参考,也是确保舞台安全性和稳定性的关键。由于钢结构容易锈蚀,一般钢结构要除锈、镀锌或涂料,并且要定期维护。因此,在施工图中会明确标注防腐处理的要求和方法。同时,施工图还会考虑到舞台的使用年限、荷载情况、抗震设防等因素,确保舞台能够在预期的使用寿命内安全运行。
综上所述,钢结构舞台施工图是钢结构舞台建设不可或缺的一部分,它包含了舞台设计的所有关键信息,为施工提供了详细的指导。通过专业的施工图,可以确保舞台的质量和安全性,同时也为施工单位提供了重要的参考依据。
钢结构舞台防腐处理方法舞台施工图设计软件推荐钢结构舞台荷载计算标准舞台施工图的安全规范要求
钢结构舞台施工图




还没有评论,来说两句吧...