舞台钢架结构图怎么画视频(cad绘制舞台钢架基础操作)
在CAD软件中绘制舞台钢架结构图是一项基础且重要的任务,它不仅需要精确的几何计算,还需要对材料特性和力学原理有深入的理解,以下是根据您提供的内容生成的一段200-300字的摘要:,要绘制一个准确的舞台钢架结构图,首先需要了解其基本组成元素,包括梁、柱、桁架等,这些元素通常由直线、圆弧、角度和尺寸标注来表示,在CAD软件中,可以通过选择“绘图”或“建模”工具来创建这些基本元素,使用“移动”、“旋转”和“缩放”命令来调整元素的位置和角度,确保它们正确组合在一起形成完整的结构,还需要注意元素的连接方式,如焊接点、螺栓连接等,以确保结构的稳定性和安全性,通过添加必要的尺寸标注和注释,完善整个设计图纸,在整个绘制过程中,不断回顾和校核计算结果,确保所有数据的准确性和合理性。
舞台钢架结构图绘制视频教程
学习钢结构图纸绘制的基础知识
在开始绘制舞台钢架结构图之前,首先需要了解钢结构图纸的基本表示方式和绘图技巧。Bilibili上有许多关于钢结构设计的视频教程,例如“建侠结构设计”作者发布的视频,这些视频涵盖了钢结构的基本原理、荷载与荷载组合、材料知识等内容,可以帮助初学者快速入门。
绘制舞台钢架结构图的具体步骤
虽然没有直接的视频教程专门教授如何绘制舞台钢架结构图,但可以通过学习CAD软件的使用和钢结构图纸的绘制方法来间接获得所需的技能。例如,有教程提到使用CAD软件绘制钢结构图纸的步骤,包括使用XL命令绘制水平线和垂直线来创建轴网,定义矩形柱块并插入标注等。这些步骤同样适用于舞台钢架结构图的绘制。
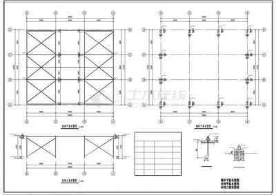
获取舞台钢架设计图纸的实例
如果您希望直接参考具体的舞台钢架设计图纸,可以尝试访问一些专业的建筑设计网站,如mfcad.com ,这些网站提供了各种钢结构架的设计图纸供用户下载学习。
结语
综上所述,虽然没有直接的视频教程专门教授如何绘制舞台钢架结构图,但可以通过学习CAD软件的使用和钢结构图纸的绘制方法来间接获得所需的技能。
CAD绘制舞台钢架基础操作
钢结构设计原理入门视频
舞台钢架结构受力分析教程

建筑CAD高级应用技巧分享





还没有评论,来说两句吧...