跨度27米的桁架钢结构设计(跨度27米的桁架钢结构设计规范解析桁架钢结构设计)
桁架钢结构是一种常见的建筑结构形式,广泛应用于桥梁、高层建筑和大型工业设施中,本文将重点介绍跨度为27米的桁架钢结构设计规范,我们需要了解桁架钢结构的基本概念和特点,包括其受力性能、稳定性和承载能力等方面的优势,我们将详细介绍桁架钢结构的设计步骤和方法,包括荷载计算、截面设计和节点连接等关键环节,我们将探讨桁架钢结构在实际工程中的实际应用案例,以期为读者提供更全面、深入的理解和认识。
跨度27米的桁架钢结构设计
设计概述
跨度27米的桁架钢结构设计是一个典型的工业或商业建筑结构设计问题。桁架结构因其高效的荷载传递能力和材料利用率而被广泛应用于大跨度结构中。在设计这样的结构时,需要考虑多种因素,包括结构形式、荷载计算、杆件设计、节点设计等。
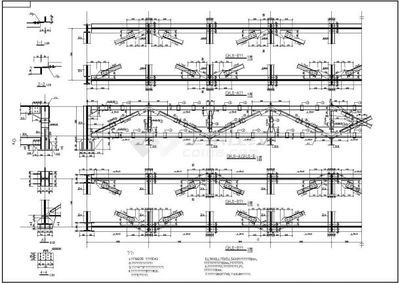
结构形式与布置
对于跨度27米的桁架钢结构,首先需要确定结构的形式和布置。这包括选择合适的屋架形式,如梯形钢屋架,并确定其尺寸,如屋架的中间高度和两端高度。此外,还需要考虑屋面的坡度、屋面材料的选择以及屋架的计算跨度等。
荷载计算
荷载计算是桁架钢结构设计中的一个重要环节。需要考虑永久荷载(如屋面材料的自重)和可变荷载(如雪荷载、风荷载等)。荷载的标准值需要根据实际情况进行计算,并考虑到屋架自重的影响。
材料选择
材料的选择对于桁架钢结构的性能至关重要。通常情况下,钢材的选择会根据《钢结构设计规范》来进行,例如采用Q235-B级钢材,焊条采用E43型,手工焊。
杆件与节点设计
杆件设计涉及到截面的选择和杆件的详细计算。节点设计则是确保结构整体稳定性的关键,需要遵循构造简单、整体刚度好、传力明确、安全可靠、节约材料和施工方便等原则。
施工与质量控制
在施工过程中,需要注意施工工艺和质量控制。这包括确保节点的焊接质量、杆件的安装精度以及整个结构的组装质量。施工过程中还需要进行详细的施工计划和监控,以确保结构的安全和可靠性。
结论
跨度27米的桁架钢结构设计需要综合考虑结构形式、荷载计算、材料选择、杆件与节点设计以及施工与质量控制等多个方面。通过合理的结构设计和精细的施工管理,可以确保桁架钢结构的安全性、经济性和施工便捷性。
桁架钢结构荷载计算方法
梯形钢屋架设计要点
钢结构材料选择标准

桁架节点设计规范解析





还没有评论,来说两句吧...