砖混墙体加固方案怎么写的(砖混墙体加固方案)
砖混墙体加固方案是针对老旧或破损的砖混结构建筑进行的一种维修和加固措施,以下是一份可能的砖混墙体加固方案:,1. 评估现状:对需要进行加固的砖混墙体进行全面的现场评估,包括结构完整性、裂缝、渗水、风化等情况的检查。,2.设计目标:根据评估结果,制定加固设计的目标,如提高结构承载力、延长使用寿命、防止进一步损坏等。,3. 材料选择:选择合适的加固材料,如碳纤维布、钢筋网、聚合物砂浆等,确保其与原结构材料相容,并能提供足够的强度和刚度。,4.施工方法:根据设计方案,选择合适的施工方法,如粘贴碳纤维布、植入钢筋、灌浆等,确保施工过程安全、高效。,5. 质量控制:在整个加固过程中,严格控制施工质量,确保加固效果达到预期目标。,6. 验收与维护:完成加固后,对工程进行验收,确保结构安全稳定,制定后续维护计划,定期检查结构状况,确保长期稳定使用。

以下是一份砖混墙体加固方案的写作思路:
一、工程概况
- 建筑基本信息
- 详细描述砖混建筑的位置、建造年代等基本情况。例如:“该砖混建筑位于[具体地址],建于[具体年份],总建筑面积为[X]平方米,共[X]层。”
- 说明墙体的结构特点,如墙体厚度(“墙体为[具体厚度,如240mm]砖砌墙体”)、墙体材料等。
- 墙体现状评估
- 介绍墙体目前存在的问题,如是否有裂缝(“经检查,墙体在[具体位置]存在宽度为[X]mm的裂缝”)、变形(“在[某些楼层或区域]发现墙体有轻微变形现象”)等情况。这可能需要经过现场检测得出数据。
二、加固目标
- 结构安全方面
- 明确加固后墙体要达到的结构安全标准,例如提高墙体的承载能力到一定数值,“加固后的墙体应能承受[X]kN/m2的荷载”。
- 稳定性目标
- 确保墙体在正常使用和可能遇到的外力作用(如地震、风荷载等)下保持稳定,如“在设防烈度为[X]度的地震作用下,墙体的位移应控制在[具体数值]以内”。
三、加固方法选择
- 混凝土灌浆加固
- 原理:“混凝土灌浆加固是通过在墙体裂缝处或孔隙内注入高强度混凝土浆料,填充墙体内部空隙,从而增加墙体整体的承载能力。”
- 施工步骤:
- 首先对墙体表面进行处理,清理裂缝周围的杂物和松散部分。
- 钻孔,确定合适的钻孔间距和深度,“钻孔间距可设置为[X]mm,深度为[X]mm”。
- 注入混凝土浆料,控制灌浆压力在[X]MPa范围内,确保浆料充分填充裂缝和孔隙。
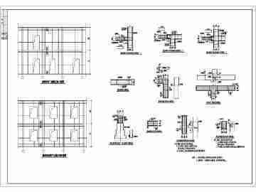
- 钢筋网砂浆面层加固
- 原理:“通过在墙体两侧设置钢筋网,并涂抹砂浆面层,利用钢筋的抗拉性能和砂浆的抗压性能来提高墙体的强度和稳定性。”
- 施工步骤:
- 墙两侧去除抹灰层,“全长开槽,深30mm,高度300mm”。
- 每隔600mm上下各打一孔,直径为30 - 50mm,用于穿过钢筋。
- 墙侧在放置钢筋处,去掉抹灰,将砖缝剔凿,深10 - 20mm。
- 绑扎钢筋网,将钢筋固定在墙体上,然后涂抹砂浆面层,厚度达到[X]mm。
- 增设构造柱和圈梁加固(如果需要)
- 原理:“构造柱和圈梁可以增强墙体的整体性和稳定性,提高墙体的抗震性能。”
- 施工步骤:
- 确定构造柱和圈梁的设置位置,一般在墙体的转角、交接处等关键部位。
- 进行基础开挖(如果是构造柱),按照设计要求绑扎钢筋、支模,然后浇筑混凝土。
- 对于圈梁,在墙体相应位置开槽,绑扎钢筋后浇筑混凝土。
四、施工流程
- 前期准备
- 材料准备:列出所需材料的规格、数量,如“高强度混凝土浆料[X]立方米、钢筋[具体型号和数量]、砂浆[具体配比和数量]等”。
- 设备准备:说明施工需要用到的设备,如钻孔机、搅拌机等,并确保设备处于良好的工作状态。
- 人员组织:安排具有相应资质和经验的施工人员,如“项目经理1名、技术人员[X]名、施工工人[X]名”。
- 具体施工流程顺序
- 如果采用多种加固方法,明确施工顺序,例如“先进行混凝土灌浆加固裂缝处理,然后进行钢筋网砂浆面层加固,最后增设构造柱和圈梁(如有需要)”。
- 对于每种加固方法,详细描述其施工流程中的各个环节,如在钢筋网砂浆面层加固中,从墙体表面处理、钢筋绑扎到砂浆涂抹的全过程。
五、质量控制
- 材料质量控制
- 对进场的材料进行检验,如“对混凝土浆料进行抗压强度试验,确保其强度达到设计要求;对钢筋进行拉伸试验,检查其屈服强度和抗拉强度是否合格”。
- 施工过程质量控制
- 施工过程中,设置质量检查点,如在混凝土灌浆加固时,检查灌浆压力和灌浆量是否符合要求;在钢筋网砂浆面层加固时,检查钢筋的间距、砂浆的涂抹厚度等。
- 做好施工记录,包括每一道工序的施工时间、施工人员、施工情况等,以便后期追溯和质量评估。
六、安全措施
- 施工安全
- 对施工人员进行安全教育培训,提高安全意识。
- 在施工现场设置安全警示标志,如在高处作业区域、电气设备附近等。
- 对施工设备进行定期检查和维护,防止设备故障引发安全事故。
- 结构安全保障
- 在加固施工过程中,对墙体及周边结构进行监测,如使用位移传感器监测墙体的变形情况,确保加固过程中结构的安全性。
七、进度计划
- 总工期安排
- 根据工程规模和复杂程度,确定整个砖混墙体加固工程的总工期,如“本工程计划总工期为[X]天”。
- 各阶段进度计划
- 将整个工程分为几个阶段,如材料准备阶段、基础处理阶段、加固施工阶段、质量检测阶段等,分别列出每个阶段的开始时间和持续时间。例如,“材料准备阶段:第1 - 3天;基础处理阶段:第4 - 7天……”




砖混墙体加固验收标准
加固施工常见问题及解决
加固工程成本预算方法
墙体加固效果检测技术

还没有评论,来说两句吧...