楼房钢筋结构图纸(楼房钢筋结构图纸是什么)
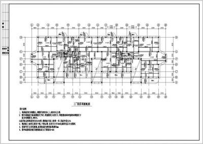
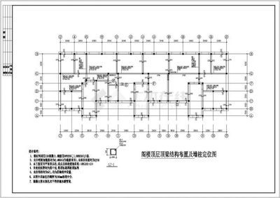
楼房钢筋结构图纸是一份详细描述建筑物中钢筋布置的工程图,它包括了钢筋的种类、规格、数量以及它们在建筑中的精确位置和连接方式,这些图纸对于确保建筑的结构安全至关重要,因为它们指导工程师和施工人员如何正确地安装和使用钢筋。,在设计阶段,钢筋结构图纸帮助建筑师确定所需的钢筋类型和规格,以承受预期的荷载和应力,施工阶段,这些图纸则指导工人按照正确的顺序和位置安装钢筋,以确保结构的完整性和稳定性。,钢筋结构图纸通常包含以下部分:,1. 标题栏:标明图纸的名称、比例尺、日期和制图者的签名。,2. 平面图:展示建筑物的平面布局,包括柱子、梁、楼板和其他结构元素。,3. 立面图:提供建筑物的垂直视图,显示屋顶、窗户和其他外部特征。,4. 剖面图:从不同角度展示建筑的内部结构,如楼层、楼梯和内部空间。,5. 详图:更详细地展示特定区域或部件的钢筋配置,包括钢筋的具体尺寸和连接方式。,楼房钢筋结构图纸是建筑工程中不可或缺的文档,它为建筑项目的顺利进行提供了必要的技术信息和指导。

楼房钢筋结构图纸是用于展示楼房钢筋混凝土结构的详细布局和钢筋配置情况的图纸。这些图纸对于建筑设计师、工程师和施工人员来说非常重要,它们提供了关于钢筋位置、数量、规格等关键信息,确保建筑结构的安全性和耐久性。在土木在线网站上,有多种楼房钢筋结构图纸可供下载,包括但不限于防坝及管涵结构图、装修样板间结构图、多层的钢筋掉料室结构图、电缆架设计结构图等。




钢筋混凝土结构设计规范
楼房钢筋配置标准
钢筋结构图纸绘制软件
钢筋混凝土结构安全检测

还没有评论,来说两句吧...