梯形钢屋架课程设计27米(27米梯形钢屋架课程设计)
本课程设计针对27米长的梯形钢屋架,旨在通过理论学习和实践操作,使学生掌握梯形钢屋架的设计、制作和安装技术,课程首先介绍梯形钢屋架的基础知识,包括材料选择、结构计算和受力分析,学生将学习如何根据工程需求选择合适的钢材,并运用相关软件进行结构计算,在制作阶段,学生将亲手制作梯形钢屋架,并了解焊接、涂装等工艺,学生将参与实际的安装工作,确保结构的稳定性和安全性,通过本课程的学习,学生不仅能够掌握梯形钢屋架的设计原理和应用技巧,还能够提高解决实际工程问题的能力。
梯形钢屋架课程设计27米
设计概述
梯形钢屋架是一种常见的钢结构形式,广泛应用于工业和商业建筑中。它的设计需要考虑多种因素,包括结构形式、荷载计算、杆件截面设计等。以下是关于27米梯形钢屋架课程设计的一些详细信息。
结构形式与布置
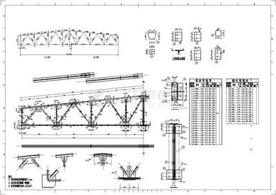
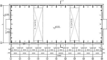
在27米梯形钢屋架的课程设计中,通常会涉及到结构形式与布置的部分。例如,屋架的几何尺寸、支撑布置等都是设计的重要组成部分。这些内容可以通过图纸来展示,包括钢屋架施工图、节点详图等。
荷载计算
荷载计算是梯形钢屋架设计的关键步骤之一。需要考虑永久荷载、可变荷载(如活荷载、雪荷载)以及积灰荷载等。例如,永久荷载可能包括屋面板、保温层、找平层等的自重,而可变荷载则可能包括屋面活荷载、风荷载等。
杆件截面设计
杆件截面设计是根据荷载计算的结果来进行的。需要计算各个杆件的最大内力,并据此选择合适的截面。这通常涉及到材料的选择、截面的尺寸确定等。例如,可能会选择特定型号的角钢,并计算其所需的净截面面积。
节点设计
节点设计是确保整个屋架结构稳定性的关键。需要考虑节点的连接方式、材料以及构造要求。例如,节点板的厚度、螺栓的规格等都是设计时需要考虑的因素。
设计示例
以下是一个27米梯形钢屋架课程设计的示例,展示了设计过程中的一些具体内容:
| 设计参数 | 数值 |
|---|---|
| 屋架长度 | 72m |
| 跨度 | 27m |
| 柱顶标高 | 9.0m |
| 柱截面尺寸 | 400×400mm |
| 屋面坡度 | 1:10 |
| 钢材材质 | Q235 |
结论
以上就是关于27米梯形钢屋架课程设计的一些详细信息。需要注意的是,每个设计项目都有其特定的要求和条件,因此在实际设计过程中,需要根据具体的设计资料来进行详细的计算和设计。
梯形钢屋架荷载计算案例
钢屋架节点设计规范
梯形钢屋架施工图示例

钢结构材料选择指南





还没有评论,来说两句吧...