房屋钢筋结构设计图纸(关于房屋钢筋结构设计图纸的一些信息)
房屋钢筋结构设计图纸是建筑工程中不可或缺的重要文件,它详细描述了建筑的钢筋配置、尺寸和位置,这些图纸通常包括了钢筋的种类、直径、数量以及它们在建筑物中的布局,设计师需要根据建筑设计要求、材料特性以及施工条件来绘制这些图纸。,钢筋结构设计图纸的主要内容包括:,1. 钢筋规格:包括钢筋的类型(如HRB400、HRB500等)、直径、长度、间距以及保护层厚度等参数。,2. 钢筋布置:明确指出钢筋在混凝土中的放置方式,比如直筋、弯钩筋、箍筋等。,3. 节点设计:描述钢筋与混凝土之间的连接点,确保结构的稳固性和耐久性。,4. 预应力设计:如果适用,说明预应力钢筋的配置和张拉方法。,5. 安全系数:根据规范设定的安全标准,确定钢筋的设计强度和应变限制。,6. 施工图:提供详细的施工指导,包括钢筋的切割、弯曲、绑扎等操作步骤。,房屋钢筋结构设计图纸是确保建筑工程质量的关键文档,它为施工人员提供了明确的指导,保证了工程的安全性和功能性。
房屋钢筋结构设计图纸
房屋钢筋结构设计图纸是建筑设计中非常重要的一部分,它详细展示了建筑物钢筋混凝土结构的布局、钢筋配置、节点连接等关键信息。以下是关于房屋钢筋结构设计图纸的一些详细信息。
1. 图纸内容
房屋钢筋结构设计图纸通常包括以下几个方面的内容:
| 内容 | 描述 |
|---|---|
| 工程背景、设计要求和图纸内容 | 简要介绍所解读的钢筋混凝土结构图的工程背景、设计要求和图纸内容等。 |
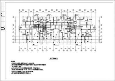
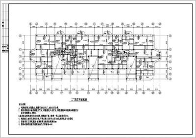
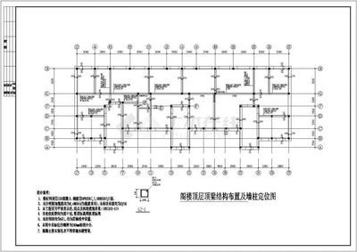
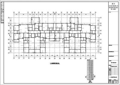
| 基本构件识别 | 根据图纸中的线条和符号,识别出梁、板、柱等基本构件,并了解其几何尺寸和位置关系。 |
| 钢筋配置分析 | 分析图纸中钢筋的种类、直径、间距和排布方式等,理解钢筋在结构中的作用和重要性。 |
| 关键部位解读 | 重点关注结构图中的关键部位和细部构造,如节点连接、钢筋锚固长度、保护层厚度等,理解其施工要求和注意事项。 |
2. 设计要点
在设计房屋钢筋结构时,需要注意以下几个要点:
| 要点 | 描述 |
|---|---|
| 施工质量和安全 | 重点关注结构图中的关键部位和细部构造,如节点连接、钢筋锚固长度、保护层厚度等,以确保施工质量和安全。 |
| 施工方案 | 根据图纸和现场情况,制定详细的施工方案,包括施工顺序、方法、安全措施等。 |
| 材料准备 | 按照图纸要求,准备足够数量的钢筋、水泥、砂、石等材料,并对其进行检验,确保质量合格。 |
| 钢筋加工与安装 | 按照图纸要求,对钢筋进行调直、切断、弯曲等加工,制作成各种形状和尺寸的钢筋构件。 |
| 模板制作与安装 | 根据图纸要求,设计模板的形状、尺寸和支撑方式等。制作模板,并进行检验,确保质量合格。 |
| 混凝土浇筑与养护 | 将混凝土拌合物浇筑到模板内,采用振捣等方式使其密实。在混凝土浇筑完成后,对其进行养护,包括浇水、覆盖保湿等措施,确保混凝土强度达到设计要求。 |
3. 质量控制与验收
为了保证房屋钢筋结构的质量,需要进行一系列的质量控制和验收工作:
| 工作 | 描述 |
|---|---|
| 尺寸偏差检查 | 使用测量工具对结构的尺寸进行检查,包括轴线位置、层高、截面尺寸等。允许偏差应符合相关规范的规定。 |
| 结构验收标准与方法 | 根据国家相关要求,对钢筋混凝土结构进行验收。 |
| 常见问题及解决方案 | 解决钢筋锈蚀、混凝土裂缝等问题,采取相应的处理措施。 |
以上就是关于房屋钢筋结构设计图纸的相关信息。这些图纸不仅是施工的重要依据,也是确保建筑物安全和质量的关键文件。在设计和施工过程中,需要严格按照图纸要求进行操作,并进行必要的质量控制和验收工作。

钢筋混凝土结构设计规范
钢筋配置与受力分析方法
钢筋混凝土结构验收流程
钢筋混凝土施工质量控制





还没有评论,来说两句吧...