房屋加固图纸(关于房屋加固图纸的一些详细信息)
房屋加固图纸是一份详细的设计文件,它包含了对现有建筑进行加固改造的具体要求和步骤,这份图纸通常由专业的结构工程师或建筑师根据建筑物的具体情况和需求来制定。,在房屋加固图纸中,通常会包括以下几个方面的内容:,1. 建筑物的基本信息:包括建筑物的类型、位置、尺寸等。,2. 加固目标和目的:明确加固的目的,例如提高建筑物的安全性、延长使用寿命等。,3. 加固方案:包括加固的方法、材料选择、施工步骤等。,4. 安全措施:确保在加固过程中不会对周围环境造成影响,如避免对交通、居民生活等造成干扰。,5. 预算和成本估算:提供加固工程的总成本和分项成本的估算。,6. 验收标准和要求:规定加固完成后的验收标准和要求。,房屋加固图纸是确保建筑物安全、合理使用的重要依据,对于保护人民生命财产安全具有重要意义。
房屋加固图纸
房屋加固图纸是指导房屋加固工程的重要文件,它包含了加固工程的设计方案、施工细节和技术要求。以下是关于房屋加固图纸的一些详细信息。
房屋加固图纸的重要性
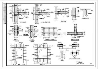
房屋加固图纸在建筑加固工程中扮演着至关重要的角色。它们不仅提供了加固方法、材料型号和规格等关键信息,而且确保了施工过程的准确性和可靠性。加固图纸通常包括加固设计说明、加固平面布置图、节点详图等内容,这些都是保证加固效果的关键要素。
房屋加固图纸的获取途径
房屋加固图纸可以通过多种途径获取。例如,加固之家网站提供了大量的加固图纸供用户下载参考。这些图纸涵盖了不同类型的房屋加固工程,包括梁、柱、墙体等不同构件的加固方案。此外,还有一些网站提供了具体的加固设计案例,如某仪器厂单层房屋加固设计cad施工图、三层砖木坡屋顶房屋加固设计cad施工图等。
房屋加固图纸的设计要点
在设计房屋加固图纸时,需要考虑多个方面。首先,加固设计应确保新、旧构件能够共同承受荷载,不仅要满足新加构件自身的结构要求,还要考虑其与原有结构构件的连接。其次,加固设计应由专业的设计单位或加固企业完成,并经过规划院审核盖章。最后,加固图纸应清晰表达加固部位、加固方法和加固材料,以便施工人员能够准确理解和执行。
房屋加固图纸的实例展示
加固之家网站提供了多个房屋加固图纸的实例,这些实例展示了不同加固方法的应用。例如,某地房屋框架梁结构加固设计施工图包含了加固设计说明、既有地下室顶层改造植筋平面图、夹层改造植筋平面图等。这些实例可以帮助设计师和工程师更好地理解加固图纸的实际应用。
综上所述,房屋加固图纸是确保房屋加固工程质量的关键。通过专业的设计和详细的图纸,可以有效地提高房屋的安全性和稳定性。如果您需要获取房屋加固图纸,可以参考加固之家网站提供的资源,或者咨询专业的加固设计单位。

房屋加固设计规范标准
加固图纸审核流程详解
加固图纸常见问题解析
加固图纸设计软件推荐





还没有评论,来说两句吧...