房屋的钢筋结构图(房屋的钢筋结构图是一个复杂但非常重要的文件需要注意以下几个方面)
房屋的钢筋结构图是一个关键文件,它详细描述了建筑中的钢筋布局,以下是对房屋钢筋结构的摘要:,1. **图纸内容**:钢筋结构图通常包含多个部分,如柱、梁、板和基础等,每个部分都有详细的钢筋布置,包括钢筋的数量、直径、位置和连接方式。,2. **设计要求**:根据建筑规范和设计标准,钢筋的布置必须满足特定的强度和耐久性要求,这可能涉及到抗拉强度、抗压强度和耐腐蚀性等因素。,3. **施工指导**:钢筋结构图为施工提供了明确的指导,帮助工人正确地安装和固定钢筋,这对于确保建筑物的安全性和功能性至关重要。,4. **维护与修复**:一旦建筑物建成,钢筋结构图也可用于识别和维护问题,如果发现某个部分的钢筋被腐蚀或损坏,可以根据图纸进行修复。,5. **安全性**:正确的钢筋布置对于建筑物的整体安全至关重要,不恰当的钢筋配置可能导致结构弱点,增加事故发生的风险。,房屋的钢筋结构图是一个重要的文件,它不仅关系到建筑的质量,还影响到建筑物的安全性和功能性,在设计和施工过程中,必须仔细处理并遵循相关的规范和标准。

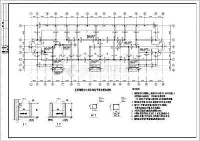
房屋的钢筋结构图
房屋的钢筋结构图是一种详细展示房屋结构中钢筋布置的图纸,它包含了钢筋的种类、直径、间距、排布方式等信息,是施工和设计的重要参考资料。在阅读和理解钢筋结构图时,需要注意以下几个方面:
钢筋的分类和作用
钢筋结构图中,钢筋按照其在构件中所起的作用不同,可以分为受力钢筋(主筋)、箍筋、架立钢筋、分布钢筋和构造钢筋等。每种钢筋都有其特定的功能,例如受力钢筋用于承受拉力或压力,箍筋用于固定受力钢筋位置并承受剪力,架立钢筋用于固定箍筋位置,分布钢筋用于固定受力钢筋位置并分布荷载,构造钢筋则是根据构件的构造要求和施工安装需要配置的。
钢筋的级别和符号
钢筋混凝土和预应力混凝土结构的配筋主要使用热轧钢筋,这些钢筋按照屈服强度标准值一般分为四个级别,每个级别的钢筋都有其特定的强度等级代号、外形、公称直径和主要用途。在钢筋结构图中,这些钢筋通常会用特定的符号来表示,以便于识别和使用。
钢筋结构图的阅读技巧
阅读钢筋结构图时,需要关注结构图中的关键部位和细部构造,如节点连接、钢筋锚固长度、保护层厚度等。这些细节对于确保施工质量和安全至关重要。此外,还需要理解钢筋在结构中的作用和重要性,以及其施工要求和注意事项。
钢筋结构图的实际应用
在实际工程中,钢筋结构图不仅用于指导施工,还涉及到材料准备、钢筋加工、钢筋连接、钢筋安装等多个环节。通过对钢筋结构图的详细解读,可以确保每个环节都按照设计要求进行,从而保证房屋结构的安全和质量。
结语
综上所述,房屋的钢筋结构图是一个复杂但非常重要的文件,它包含了房屋结构中钢筋布置的所有必要信息。通过仔细阅读和理解钢筋结构图,可以确保施工的质量和安全,同时也是设计和施工人员不可或缺的工具。




钢筋结构图中钢筋符号含义
钢筋混凝土结构设计要点
钢筋锚固长度规范查询
钢筋结构图与施工流程关系

还没有评论,来说两句吧...