房屋钢筋结构设计图纸怎么看(如何查看房屋钢筋结构设计图纸)
房屋钢筋结构设计图纸是建筑施工中不可或缺的重要文件,它详细描述了建筑的钢筋布局和构造,要看懂这些图纸,需要掌握一些基本知识和技巧,了解图纸上的符号和代号,如H表示水平筋、L表示纵向筋等,熟悉钢筋的规格和间距,例如直径、长度、数量等,注意图纸上标注的钢筋级别,这关系到钢筋的强度和耐用性,观察钢筋的布置方式,比如是否按照规范要求进行交叉、搭接或绑扎,理解图纸中的标注信息,如箍筋的数量、位置和尺寸等,通过以上步骤,你可以逐步解读并理解房屋钢筋结构设计图纸,为后续的施工工作打下坚实的基础。

房屋钢筋结构设计图纸的查看方法
房屋钢筋结构设计图纸是建筑设计中非常重要的一部分,它详细展示了钢筋混凝土结构的配筋情况。以下是根据提供的搜索结果,整理出来的关于如何查看房屋钢筋结构设计图纸的方法。
1. 了解钢筋图纸的基本构成
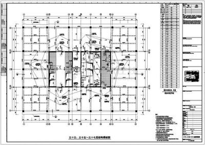
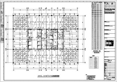
钢筋图纸,也称为钢筋混凝土结构施工图中的配筋图,是用来表示钢筋在混凝土结构中的布局和数量。在传统的钢筋图纸中,可能会有大量的剖切符号和详图,而在平法(结构施工图平面整体设计方法)中,配筋信息主要集中在各层平面图上,减少了图纸的数量,简化了设计。
2. 掌握钢筋图纸的识读要点
要读懂钢筋图纸,首先需要了解图纸的基本构成,包括基础平面图和基础详图。基础平面图展示基础的平面布置,而基础详图则是基础的垂直断面图,用于表明基础的细部形状、大小、材料、构造及埋置深度等。在阅读基础详图时,需要注意了解基础的具体尺寸、构造做法和所用材料,以及基底标高、垫层的做法、防潮层的位置及做法等。
3. 理解钢筋的表示方法
在钢筋图纸中,钢筋的配置情况通常通过特定的图示方法来突出表示。例如,在构件结构图中,钢筋用粗实线表示,而构件的外形轮廓线用细实线表示。在构件的断面图中,钢筋的截面则用粗圆点表示。此外,还需要标注钢筋的编号,同类型的钢筋可采用同一钢筋编号。钢筋的直径、数量或相邻钢筋中心距一般采用引出线方式标注。
4. 注意钢筋图纸的特殊表示
在钢筋图纸中,会使用到一些特殊的表示方法,如剖切符号和详图。这些符号和详图可以帮助读者更好地理解钢筋的配置情况。例如,平法配筋图中,剖切符号和详图突然消失,这是因为配筋信息基本上全都在各层平面图上显示出来了,包括梁、柱、墙板、楼板等。
5. 结合实际经验和专业知识
学习如何看懂钢筋图纸是一个渐进的过程,需要通过实践和经验积累来不断提高。可以通过参与实际的钢筋混凝土结构项目,与经验丰富的专业人士交流和学习,积累实际操作和解读图纸的经验。
通过上述方法,您可以更好地理解和掌握房屋钢筋结构设计图纸的内容。




钢筋图纸剖切符号含义解析
钢筋混凝土结构设计要点
钢筋图纸与实际施工差异
钢筋混凝土结构施工难点

还没有评论,来说两句吧...