室外钢结构楼梯施工方案(室外钢结构楼梯施工方案的主要内容)
室外钢结构楼梯施工方案主要涉及以下几个方面:设计阶段需要根据现场实际情况和客户需求进行详细的设计规划,包括楼梯的尺寸、结构形式、材料选择等,施工准备阶段需要进行施工现场的布置,包括搭建脚手架、设置安全警示标志、清理施工场地等,在施工阶段,需要按照设计图纸进行钢结构的制作和安装,同时要注意焊接质量、防腐处理等细节,验收阶段要对整个项目进行全面的检查和评估,确保工程质量符合标准要求。
室外钢结构楼梯施工方案
室外钢结构楼梯的施工方案是一个系统的过程,涉及到设计、材料采购、施工步骤等多个方面。以下是根据提供的搜索结果整理的室外钢结构楼梯施工方案的主要内容。
施工前准备
确定设计方案
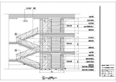
首先,需要根据具体的使用需求和场地条件,确定室外钢楼梯的设计方案。设计方案应涵盖楼梯的形态、结构、材料等要素,并满足当地的建筑规范和安全标准。
材料采购
根据设计方案,进行钢楼梯所需材料的采购工作。常见的室外钢楼梯材料包括钢板、扶手、踏板等。采购时应注意材料的质量和规格是否符合设计要求。
场地准备
在施工前,需要对楼梯安装的场地进行准备工作。包括清理场地、测量和标注安装位置,并确保场地平整、稳固。
施工步骤
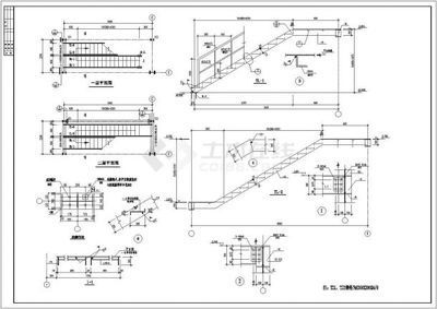
安装基础支撑
根据设计要求,在场地上进行基础支撑的安装。根据钢楼梯的结构和尺寸,挖掘合适的基坑,并安装基础底座。基础底座可以采用混凝土浇筑或使用预制基座。
安装钢楼梯骨架
在安装基础支撑后,可以开始安装钢楼梯的骨架。根据设计要求,将预先加工好的钢板、扶手和踏板等元件逐步安装到基础支撑上。在安装过程中,应确保每个元件的位置准确、对齐,并使用螺栓、焊接等方式进行固定。
防腐处理和涂装
在钢楼梯骨架安装完成后,需要对钢材进行防腐处理和涂装。首先,对钢材表面进行除锈处理,去除杂质和氧化物。然后,应根据具体需要对钢材表面进行防腐处理。最后,进行涂装,增加钢材的美观度和耐久性。
安装扶手和踏板
在进行防腐处理和涂装后,可以进行扶手和踏板的安装工作。根据设计要求,将扶手和踏板固定在钢楼梯的骨架上。在安装过程中,应确保扶手和踏板的位置平整、牢固,并使用螺栓、焊接等方式进行固定。
检查和调整
在完成钢楼梯的安装后,需要进行检查和调整工作。检查楼梯的各个部分是否安装正确、固定可靠,并进行必要的调整。同时,检查楼梯的安装质量和使用安全性,确保符合建筑规范和安全标准。
施工注意事项
安全措施
施工过程中应采取必要的安全措施,包括佩戴个人防护装备、使用合适的工具和设备、遵守安全操作规程等,确保施工人员的人身安全。
质量控制
在施工过程中,应进行严格的质量控制,确保钢楼梯的安装质量和使用性能。包括材料质量检测、安装过程中的检查和调整、最终成品的验收等。
合理施工进度安排
钢楼梯的施工需要进行合理的进度安排,确保施工过程顺利进行并能按时完成。在安排施工进度时,需要考虑到材料采购、装配、施工和检验等各个环节的时间和顺序。
环境保护
在施工过程中应注重环境保护,遵守环保法规和规定。特别是在进行防腐处理和涂装时,应选择环保的材料和方法,防止对环境造成污染。
结论
室外钢结构楼梯的施工方案是一个复杂而细致的过程,需要充分考虑设计、材料、施工步骤和安全等方面。通过严格的施工管理和质量控制,可以确保钢结构楼梯的安全性和耐久性。
钢结构楼梯设计要点
室外楼梯施工安全规范
钢结构楼梯成本预算

钢结构楼梯维护保养





还没有评论,来说两句吧...