屋面梁做法图集(16g101图集,屋面梁钢筋安装步骤详解)
屋面梁是建筑结构中的重要组成部分,其安装质量对整个建筑物的稳固性和安全性有着至关重要的影响,本文将详细介绍16g101图集中关于屋面梁钢筋安装步骤的内容,以帮助施工人员正确、高效地进行施工。,在开始安装屋面梁钢筋之前,需要确保施工现场的环境条件满足施工要求,如温度、湿度等,根据设计图纸和施工规范,选择合适的钢筋材料,并对其进行检验,确保其符合相关标准和要求。,按照图纸要求,进行钢筋的切割、弯曲和连接等工作,在切割过程中,应使用合适的工具和设备,以确保钢筋的尺寸和形状准确无误,在弯曲钢筋时,应注意控制弯曲角度和弯曲半径,以保证钢筋的强度和韧性。,将处理好的钢筋与混凝土模板进行固定,并通过焊接或其他方式将钢筋与混凝土牢固地连接起来,在整个钢筋安装过程中,应严格遵守施工规范和操作规程,确保工程质量和安全。

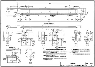
屋面梁做法图集
16G101图集
16G101图集提供了关于屋面梁上部钢筋的做法,这是屋面梁结构中的一个重要组成部分。图集详细介绍了钢筋的安装步骤,包括在屋面框架梁上安装钢筋并用锚栓固定,以及沿梁的方向安装钢筋,并对梁上的钢筋进行加固,使用焊接或机械连接的方式将钢筋固定到梁上。
22G101图集
22G101图集则涵盖了屋面框架的做法,包括抗震构造、屋架结构、墙体结构、屋面结构和屋顶等方面。例如,抗震构造采用了气压杆支撑,支撑端通过螺栓与墙柱连接,墙柱与楼板屋架节点处安装抗震连接接头件。屋架结构采用钢梁桁架结构,梁架与支撑点之间用钢梁连接,梁架与楼板之间用双层梁架连接。此外,屋面框架的构造还可以依据建筑的结构形式和使用要求,采用木构架、钢构架搭建等方式,满足不同建筑物的需求。
其他相关信息
除了上述两个图集之外,还有一些其他的相关信息。例如,屋面工程施工中,屋面做法主要为柔性防水层,如1.2厚合成高分子卷材,干铺油毡一层,面上加40厚C20细石砼配4钢筋@150。在屋面结构和女儿墙结构完成后,需要清除杂物,结构层清除干净后用水冲洗,并检查有无渗漏。屋面排水沟必须有坡度,确保屋面工程质量优良。
此外,坡屋顶结构做法也非常重要,其中包括坡屋面梁制图图纸下载,描述了坡屋顶结构做法、构造措施、坡屋面房屋有关构造详图局部梁平法施工图等内容。
以上信息提供了关于屋面梁做法的详细图集和相关资料,希望能够帮助您更好地理解和应用这些做法。




屋面梁钢筋安装步骤详解
屋面框架抗震构造设计原理
柔性防水层施工工艺流程
坡屋顶结构构造详图获取

还没有评论,来说两句吧...