厂房夹层面积计算标准
温馨提示:这篇文章已超过434天没有更新,请注意相关的内容是否还可用!
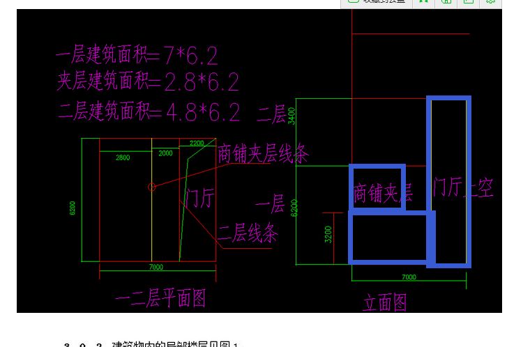
摘要:厂房夹层面积的计算标准遵循一定的规则和原则。根据国家标准,永久性结构的单层房屋按一层计算建筑面积,多层房屋则需将各层建筑面积相加。对于厂房内的夹层、插层或技术层等高度超过2.20米的部位,其建筑面积应予以计算。计算时,通常从外墙开始算起,包括夹层所有三面墙体,但不包括楼板厚度小于规定值的部分。每层楼板的面积不计入计算范围。在具体操作中,若夹层的面积形状不规则,可能需要将其划分为多个矩形区域,然后分别计算各自的面积,并将这些结果累加。还需考虑设备平台的使用情况,如果设备平台作为设备层使用,是否计算建筑面积取决于具体的建筑设计和使用需求。,,厂房夹层面积的计算需要综合考虑建筑的结构特点、用途以及相关规范要求,以确保计算的准确性和合规性。
厂房夹层面积计算标准
厂房夹层面积的计算标准主要取决于夹层的高度和使用功能。根据我国相关法律规定,夹层的高度应不超过4.5米,并且需要满足使用功能要求,例如具备合适的安全出口和疏散通道等。只有符合这些要求的夹层才能被视为有效的建筑面积。以下是具体的计算标准:
高度要求
在建筑设计中,夹层的高度如果超过2.2米时,是计入建筑面积的。这意味着,如果夹层的高度满足这一要求,那么就需要将其计入建筑面积之中。
面积计算方法
计算夹层建筑面积的方法通常是先确定夹层的净高,即从夹层地面到下层层板的高度。然后根据夹层的平面尺寸来计算其面积,包括夹层的长和宽。最后将夹层的净高与面积相乘,即可得到夹层的建筑面积。
特殊情况下的面积计算
对于有局部夹层的建筑物,如阁楼和楼梯间等,其面积计算方法也有所不同。这些局部夹层的面积只计算其中有效部分的建筑面积,并且需要遵循相应的规范和标准。
建筑面积计算的其他注意事项
在计算工业厂房的建筑面积时,还需要考虑其他因素。例如,穿过房屋的通道、房屋内的门厅、大厅均按一层计算面积。门厅、大厅内的回廊部分,在2.20米以上的按其水平投影面积计算。楼梯间、电梯观光梯井、提物井、垃圾道、管道等,则均按房屋自然层计算面积。房屋天面上的属建筑,在2.20米以上的楼梯间、水箱间、电梯机房及斜面结构屋顶高度在2.20米以上的部位,按其水平投影面积计算。挑楼、全封闭的阳台按其水平投影面积计算,而与房屋相连的有柱走廊两房间,也需分别计算水平投影面积。
综上所述,厂房夹层面积的计算需要考虑夹层的高度、使用功能以及具体的计算方法。在实际操作中,应参照相关的国家标准和规范来进行计算。
厂房夹层安全出口设计规范
工业厂房建筑面积计算实例
夹层建筑设计中的法规依据
厂房夹层使用功能分类标准





厂房夹层算不算建筑面积
厂房夹层算不算建筑面积 摘要建筑中的夹层不计算层数。 在建筑设计中夹层的高度如果超过2.2米时候是计入建筑面积的。 建筑夹层也可叫技术层、设备层。 一般用来布置专用的管线和设备。 它是位于两自然层之间的楼层,是房屋内部空间的局部层次,如一栋房屋从外部看是两层楼房,从内部看是三层,这三层中间的一层就叫做夹层。 规范:《房产测量规范》GB/T117986—2000。 房屋层数是指房屋的自然层数,一般按室内地坪±0以上计算;采光窗在室外地坪以上的半地下室,其室内层高在2.20m以上的,计算自然层数。 房屋总层数为房屋地上层数与地下层数之和。 同时《规范》中规定:永久性结构的单层房屋,按一层计算建筑面积;多层房屋按各层建筑面积的总和计算。 房屋内的夹层、插层、技术层及其楼梯间、电梯间等其高度在2.20m以上部位计算建筑面积。 亲亲为您查询厂房夹层算不算建筑面积 夹层亦称附层,指位于房屋自然层内的局部楼层,未形成完整楼层结构,但属于房屋整体结构的一部分。 如一幢房屋从外部看是两层楼房,从内部看是三层,这三层中间的一层就叫夹层。 房屋内的夹层、插层、技术层及其梯间、电梯间等其高度在2.20m以上部位计算建筑面积;自然层中的夹层计算面积,但不计算总层数。 建筑中的夹层不计算层数。 新浪微博 使用百度知道APP,立即抢鲜体验。你的手机镜头里或许有别人想知道的答案。 0/200
如何测量厂房面积
下面进行详细解1.答案:采用直接测量的方法计算厂房面积。 包括测量厂房的长、宽、高,然后将三者相乘得出面积。 另外,还需要考虑门窗、柱子等所占的面积,这些需要从总面积中减去。 最终得到的数值即为厂房的实际面积。 详细解释。 如何测量厂房面积 1.答案:采用直接测量的方法计算厂房面积。 首先,需要准备测量工具,如卷尺、测距仪等。 然后,确定厂房的长和宽。 通常,厂房的长指的是建筑物的外部长度,宽则是与长垂直的最大跨度。 对于厂房内部如立柱的位置也应纳入测量考虑范畴。 准确测量得到这两个数据后,可大致得出一个粗略面积值。 再将这些数据输入计算机,通过专业软件绘制厂房平面图以获取更精确的面积计算。 这种方法对于面积较小的厂房或空间比较规整的场景比较适用。 同时要扣除墙壁和隔断所占用的空间来计算实际的可用面积。 此外,还要考虑楼层高度,对于多层厂房,每一层的面积都需要单独计算。 最后将所有层的面积相加得到总面积。 整个过程中需要注意测量的准确性以避免误差的产生。 计算时要结合实际考虑到不规则部分或难以测量的地方的情况进行合理估算以确保面积的准确性。 测量完毕后要对所有数据进行汇总计算最终得出厂房面积。 通过上述方法,可以得到厂房的准确面积,为后续规划和管理提供依据。
工业厂房面积建筑面积计算.docx
Word版本,下载可自由编辑工业厂房面积建筑面积计算工业厂房面积建造面积计算详细内容是什么,下面我为大家解答。 1、面积计算,在主体结构内形成的建造空间,满足计算面积结构要求的均应按相关规定计算建造面积。 2、主体结构外的室外阳台、雨篷、檐廊、室外走廊、室外楼梯等按相应条款计算建造面积、工业厂房面积包括套内的使用面积和套内墙风光积,也就是建造面积减去分摊的面积。 1、单层房屋,按一层计算建造面积;多层房屋按各层建造面积的总和计算、房屋内的夹层、插层、技术层及其梯间、电梯间等其高度在2.20m以上部位计算建造面积、穿过房屋的通道,房屋内的门厅、大厅,均按一层计算面积。 2、楼梯间、电梯井、提物井、垃圾道、管道等均按房屋自然层计算面积、房屋天面上,属性建造,在2.20m以上的楼梯间、水箱间、电梯机房及斜面结构屋顶高度在2.20m以上的部位,按其外围水平投影面积计算。 3、挑楼、全封闭的阳台按其外围水平投影面积计算、结构有上盖的室外楼梯,按各层水平投影面积计算、与房屋相连的有柱走廊,两房屋间有上盖和柱的走廊,均按其柱的外围水平投影面积 市"高考语文考点课教学"。
工业厂房面积怎么计算?建筑面积怎么计算-建筑面积,结构,层高
2023-12-1307:00来源:网友投稿大家好!今天咱们要聊的话题是工业厂房的面积计算问题,以及如何减轻城市用地紧张的矛盾。 想必大家都知道,厂房是为中小型企业集聚发展或是外来工业项目提供生产经营场所的发展平台。 但是,你知道工业厂房的面积该如何计算吗工业厂房面积计算和建筑面积计算是有区别的哦!赶紧跟365淘房一起来了解一下吧! 首先,我们来说说工业厂房面积的计算方法。 工业厂房面积主要由套内使用面积和套内墙体面积组成,即建筑面积减去分摊的面积。 相信这里的小伙伴们都能看懂吧!接下来,我们要介绍的是工业厂房建筑面积的计算方法。 首先,单层房屋按层数计算建筑面积,而多层房屋则按各层建筑面积的总和计算。 其次,在房屋内的夹层、层、技术层及其梯间、电梯间等高度在2.20米以上的部位,也需要计算建筑面积哦! 那么,除了上面所介绍的内容,你还需要注意哪些细节来计算工业厂房建筑面积呢这里为大家再次提醒:穿过房屋的通道、房屋内的门厅、大厅均按一层计算面积。 门厅、大厅内的回廊部分,在2.20米以上的按其水平投影面积计算。 而楼梯间、电梯观光梯井、提物井、垃圾道、管道等,则均按房屋自然层计算面积。 房屋天面上的属建筑,在2.20米以上的楼梯间、水箱间、电梯机房及斜面结构屋顶高度在2.20米以上的部位,按其水平投影面积计算。 ,挑楼、全封闭的阳台按其水平投影面积计算,而与房屋相连的有柱走廊两房间,也需分别计算水平投影面积哦! 今天就跟大家简单介绍了建筑面积计算的方法,同时也为大家解答了工业厂房面积怎么计算的问题。
夹层算不算建筑面积 夹层建筑面积计算规则是什么
朋友们你们知道什么叫做夹层吗?夹层其实是位于主层和顶层之间的层次,它是可以适当增加空间或者是改变空间布局的。 那么夹层到底算不算做建筑面积呢?夹层的建筑面积又应该如何去计算?有什么计算规则呢?接下来的内容小编就简单给大家说说这两个问题,介绍一下夹层到底算不算建筑面积以及夹层建筑面积的计算规律。 一、夹层算不算做建筑面积 夹层算不算建筑面积还存在些争议。 有人认为夹层只是一种局部的增加使用空间的方式,并不能算作建筑的正式面积。 而另一些人则认为,夹层是建筑物内部的实际使用空间,应该计算在建筑面积之内。 其实夹层算不算建筑面积的问题主要涉及到夹层的高度和使用功能。 根据我国相关法律规定,夹层的高度应不超过4.5米,并且需要满足使用功能要求,例如具备合适的安全出口和疏散通道等。 只有符合这些要求的夹层才能被视为有效的建筑面积。 二、计算夹层建筑面积方法 那么夹层建筑面积如何具体计算呢?我们首先需要做的就是确定夹层的净高,即从夹层地面到下层层板的高度。 然后可以根据夹层的平面尺寸来计算其面积,包括夹层的长和宽。 之后将夹层的净高与面积相乘,即可得到夹层的建筑面积。 对于有局部夹层的建筑物,像阁楼和楼梯间等,其面积计算方法也有所不同。 这些局部夹层的面积只计算其中有效部分的建筑面积,并且需要遵循相应的规范和标准。 夹层到底算不算做建筑面积呢?相信大家在看完小编上文所说内容后都已经知道了答案,以及夹层的计算方法又是什么呢?如果仔细观看小编文章的朋友们肯定是知道。 今天的内容到这里就结束了,咱们在下一期的文章中再见啦。
1到4层的标准厂房是按占地面积算还是按每层面积算的
您好,根据不同的厂房类型,1到4层的标准厂房是按占地面积算的。比如,一层厂房的占地面积为100平方米,那么2层厂房的占地面积就是200平方米,3层厂房的占地面积就是300平方米,4层厂房的占地面积就是400平方米。但是,如果每层厂房的面积不同,那么就要按照每层厂房的面积来计算占地面积了。希望以上信息对您有所帮助。 下载百度知道APP,抢鲜体验使用百度知道APP,立即抢鲜体验。你的手机镜头里或许有别人想知道的答案。
中卫市钢结构厂房夹层安全鉴定报告 规范标准
中卫市钢结构厂房夹层安全鉴定报告规范标准 一、钢结构夹层安全检测找什么单位——钢结构仓库平台的常见结构布置 除了个别情况,如一些设备夹层为了方便设置管道,将夹层布置的厂房中部位置外,大多数厂房的夹层都布置在厂房的端部。 有的布置在端部角,有的布置在端部一两个柱距。 一般情况下如果甲方将夹层区布置在端部整个跨度时,多数人通常情况下会建议甲方将整个夹层区和主厂区中问设置抗震缝脱离出来。 而夹层采用的是组合楼板,自重大,使用荷载大,不符合《门式刚架轻型房屋钢结构技术规程》的使用范围,需要使用《钢结构设计规范》(GB50017一:2003)进行设计。 这样必定会造成结构设计复杂化。 尽管建筑都有盖缝措施,大多数甲方仍然不希望在建筑物中设置一道缝,这种情况结构如何处理,这就需要结构设计师们来认真分析这个问题了。 目前对于夹层的结构布置有3种方法。 1)为了避免框架体系对排架体系的影响,的解决方法就是单*再设置夹层的钢柱,夹层纵横向钢梁与钢柱还是刚接,但夹层梁、柱与厂房钢柱在纵横向脱开,不连接在一起,形象一点讲就是在主厂房内部单*再建一个夹层,该夹层和主厂房没有任何联系。 这种房中房结构使得两种体系各自单*受力。 如果厂房内的夹层面积比较小,采用此种方案结构体系清晰,结构计算也比较简单。 但是,如果夹层的面积比较大或夹层范围内存在厂房柱,这种结构布置就有问题。 **,夹层梁不能连接在厂房柱上,就只能设置双柱,一个是夹层柱,一个是厂房柱(如图1)。 这样就会减少建筑使用面积,有时还会影响到建筑功能、工艺设备摆放等。 其次,夹层的组合楼板也需要在厂房柱处开洞并且还要预留一定的间隙,让厂房柱穿过夹层并且保证厂房柱在水平力的作用下不会和组合楼板碰撞。 这种布置方案虽然的解决框架体系对排架体系的影响问题,但在夹层周边与厂房墙体相交处及厂房中柱穿过平台处必须预留一定的间隙,这种情况下如果夹层功能仅是操作平台时还可以接受,但如果平台上是要求较高办公用房,这样使用起来很不舒服,一般情况下甲方不好接受。 还有甲方看来有厂房柱不去利用反而又单*设钢柱感觉有点浪费,另外从设计就角度考虑双柱处基础设计起来也复杂化了。 2)另外一种夹层结构布置是纵横向钢梁与钢柱均为刚接,夹层钢梁与厂房钢柱在纵横向也刚接。 这种结构布置在计算时一般先建立夹层的纵横向框架三维模型进行计算,再用二维模型将夹层横向梁柱和主厂房排架梁柱一起进行厂房横向排架补充计算。 参考两个模型的计算结果进行夹层的梁、柱及夹层l上主厂房梁、柱的设计。 这种方法相当于把一个门式钢架体系和一个框架体系连接在了一起。 3)后一种方法是夹层自身不按框架结构布置,而是和厂房一同按横向排架布置。 如果厂房柱的抗侧移刚度足够的话,夹层的横向梁可以设成连续梁,夹层的柱子上下铰接,夹层的横向梁和厂房的柱子铰接。 如果厂房柱的抗侧移刚度比较小,可以考虑将夹层柱的下端与基础刚接,这样可以增加排架侧向的刚度。 为了抵抗纵向水平力的作用,这时需要在夹层纵向设置柱间支撑。 夹层自重大,使用荷载大,所以夹层的柱间支撑一般不采用圆钢柔性支撑,而是采用型钢刚性支撑。 这种结构布置虽然夹层和厂房连接在了一起,并且适用的规范也不一样,但是两者的结构体系是统一的,都是排架体系,结构受力明确,计算分析也比较方便。 这种布置方案实际上是在上述**中布置方案基础上的改进,虽然在概念上受力明确,但也由不足之处。 **这种方案夹层平台的刚度小,主要依靠厂房刚架的侧向刚度来抵抗侧移,这就需要厂房主钢架的侧移刚度较大,构件截面就较**种方案大。 其次夹层梁按铰接时,截面一定没有连续设计节省造价,从厂房纵向来看,纵向受力变得复杂了,平台的纵向柱间支撑设计也很棘手。 二、钢结构夹层仓库检测鉴定内容及方法——钢结构夹层仓库检测鉴定注意事项: 1钢材的强度较高,重量轻 钢材与混凝土或木质材料相比,虽然钢材的容积重量比较大,但是由于钢材的强度很大,而且容积重量与屈服点的比值相比相对来讲较低。 所以,在承重力相一致的前提下,钢材结构与木质材料结构和钢筋混凝土结构进行比较,构件的体积较小,重量轻,对于运输与安装来讲相对比较方便。 所以,钢结构比较适用于建筑物较高,跨度较大,而且要求可以进行装拆移动的结构。 2钢材的质地均匀,具有良好的塑性和韧性 与平常的木质材料和混凝土相比较,钢材质地均匀,具有较好的塑性与韧性。 3安装较方便而且施工周期短 因为现在的施工特点是一般都不在建筑场地施工而只是在建筑场地进行安装等简单的操作,因此对于钢这种装配化程度较高的材料来讲,不仅装配速度较高而且施工的速度也较高,施工周期极短。 4钢材料的密闭性较好 由于钢材有不易渗漏与可焊接性,因此可以焊接封闭的钢结构。 5钢材料耐热,但是不易耐火
夹层建筑面积计算规则
夹层建筑面积计算规则-夹Fra 夹层建筑面积计算规则 夹FraBaidubibliotek建筑面积计算规则 夹层建筑的面积计算规则: 1、面积计算从外墙开始算起,包括夹层所有的三面墙体,但不包括厚度为楼板高度(厚度小于楼板高度的厚度); 2、每层楼板的面积不计算在内,只计算夹层每个框剪空余处、每个构件(椽子)及悬挑部位的面积;
工业厂房面积怎么计算?建筑面积怎么计算
工业厂房面积怎么计算?建筑面积怎么计算工业厂房面积包括套内的使用面积和套内墙体面积,也就是建筑面积减去分摊的面积。 工业厂房建筑面积的计算方法如下:性结构的单层房屋,按一层计算建筑面积;多层房屋按各层建筑面积的总和计算。 房屋内的夹层、插层、技术层及其梯间、电梯间等其高度在2.20m以上部位计算建筑面积。 穿过房屋的通道,房屋内的门厅、大厅,均按一层计算面积。 门厅、大厅内的回廊部分,在2.20m以上的,按其水平投影面积计算。 楼梯间、电梯(观光梯...。 1个回答 私信TA工业厂房面积包括套内的使用面积和套内墙体面积,也就是建筑面积减去分摊的面积。 楼梯间、电梯(观光梯)井、提物井、垃圾道、管道等均按房屋自然层计算面积。 房屋天面上,属性建筑,在2.20m以上的楼梯间、水箱间、电梯机房及斜面结构屋顶高度在2.20m以上的部位,按其外围水平投影面积计算。 挑楼、全封闭的阳台按其外围水平投影面积计算。 属性结构有上盖的室外楼梯,按各层水平投影面积计算。 与房屋相连的有柱走廊,两房屋间有上盖和柱的走廊,均按其柱的外围水平投影面积计算。 房屋间性封闭的架空通廊,按外围水平投影面积计算。 地下室、半地下室及其相应出入口,在2.20m以上的,按其外墙(不包括采光井、防潮层及保护墙)外围水平投影面积计算。 有柱或有围护结构的门廊、门斗,按其柱或围护结构的外围水平投影面积计算。 玻璃幕墙等作为外墙的,按其外围水平面积计算。 属性建筑有柱的车棚、货棚等按柱的外围水平投影面积计算。 依坡地建筑的房屋,利用吊脚做架空层,有围护结构的,按其高度在2.20m以上部位的外围水平面积计算。 有伸缩缝的房屋,若其与室内相通的,伸缩缝计算建筑面积。 00分享
厂房内部加夹层的规定 – 手机爱问
厂房内部加夹层的规定 根据现有法律法规规定,既有建筑增设夹层由住房和城乡建设部门加强房屋安全监管,由消防机构加强消防安全监管。 在既有建筑内增设夹层行为是装饰装修行为,无需办理建设工程规划许可证,不适用《中华人民共和国城乡规划法》。 根据《中华人民共和国建筑法》规定,建筑工程竣工经验收合格后,方可交付使用未经验收或者验收不合格的,不得交付使用。 也就是说,建筑工程经验收合格交付后,建筑工程就已完成。 按照住房和城乡建设部的相关规定,除不改变房屋外形和使用性质,只涉及内部结构加固、改造和内部装饰的修缮工程外,都应当办理规划审批手续。 在既有建筑内增设夹层行为,并未改变房屋外形和使用性质,仅涉及内部结构改造,是装饰装修行为,无需办理建设工程规划许可证。 因此,对在既有建筑内部增设夹层行为不适用《中华人民共和国城乡规划法》。 在既有建筑内增设夹层行为无需办理施工许可证。 《建筑工程施工许可管理办法》规定,工程投资额在30万元以下或者建筑面积在300平方米以下的建筑工程,可以不申请办理施工许可证。 《住宅室内装饰装修管理办法》规定,工程投资额在30万元以下或者建筑面积在300平方米以下,可以不申请办理施工许可证的非住宅装饰装修活动参照本办法执行。 厂房改造做夹层须报请建设行政主管部门同意,须对照原施工图纸重新进行地基承载力勘察,重新进行施工图设计,向建设行政主管部门报送改造工程资料,完成招投标程序,办理施工许可和安全施工许可证后方可施工。 夹层消防要求规范: 1)、须佩戴安全帽及相应安全防护装备。 2)、须按固定路线行走。 3)、作业完毕,须及时清理无用物品。 4)、发现异常情况应及时处理不能处理的,立即上报。 5)、严禁擅自操作电源、水、压空、蒸气等开关或阀门。 6)、严禁两人或两人以上同时站在同一彩板上。 7)、严禁吸烟。 8)、不得违背其它相关规定 39人阅读 0人阅读 41人阅读
工业厂房面积 建筑面积计算标准!
工业厂房面积建筑面积计算标准! 壹加贰房地产中介厂房是指在规定区域内统一规划的,具有通用性和配套性以及集约性等特点,主要为中小型工业企业集聚发展,以及为外来工业投资项目提供生产经营场所的发展平台。 推进厂房建设有利于优化资源配置,还能缓解用地紧张这一矛盾。 工业厂房面积怎么计算 工业厂房面积包括套内的使用面积和套内墙体面积,也就是建筑面积减去分摊的面积。 工业厂房建筑面积怎么计算 1.永久性结构的单层房屋,按一层计算建筑面积;多层房屋按各层建筑面积的总和计算。 2.房屋内的夹层、插层、技术层及其梯间、电梯间等其高度在2.20m以上部位计算建筑面积。 3.穿过房屋的通道,房屋内的门厅、大厅,均按一层计算面积。 门厅、大厅内的回廊部分,层高在2.20m以上的,按其水平投影面积计算。 4.楼梯间、电梯(观光梯)井、提物井、垃圾道、管道等均按房屋自然层计算面积。 5.房屋天面上,属永久性建筑,层高在2.20m以上的楼梯间、水箱间、电梯机房及斜面结构屋顶高度在2.20m以上的部位,按其外围水平投影面积计算。 6.挑楼、全封闭的阳台按其外围水平投影面积计算。 7.属永久性结构有上盖的室外楼梯,按各层水平投影面积计算。 8.与房屋相连的有柱走廊,两房屋间有上盖和柱的走廊,均按其柱的外围水平投影面积计算。 9.房屋间永久性封闭的架空通廊,按外围水平投影面积计算。 10.地下室、半地下室及其相应出入口,层高在2.20m以上的,按其外墙(不包括采光井、防潮层及保护墙)外围水平投影面积计算。 11.有柱或有围护结构的门廊、门斗,按其柱或围护结构的外围水平投影面积计算。 12.玻璃幕墙等作为外墙的,按其外围水平面积计算。 13.属永久性建筑有柱的车棚、货棚等按柱的外围水平投影面积计算。 14.依坡地建筑的房屋,利用吊脚做架空层,有围护结构的,按其高度在2.20m以上部位的外围水平面积计算。 15.有伸缩缝的房屋,若其与室内相通的,伸缩缝计算建筑面积。
夹层建筑面积如何计算-服务新干线答疑解惑
首层层高4.5,首层局部有一夹层高1.8。 其中楼梯是从负一层不经一层直接上到夹层的,请问夹层的面积是如何计算才符合国家标准。 计算时夹层的面积是算到夹层的板边还是算到夹层板的梁边或墙边的。 答题人必看全部回答(2)首答仅用{{minutesHtml}} GXZ铂金专家答题:225836被赞:423203.0.4多层建筑坡屋顶内和场馆看台下,当设计加以利用时净高超过2.10m的部位应计算全面积;净高在1.20m至2.10m的部位应计算1/2面积;当设计不利用或室内净高不足1.20m时不应计算面积。 按墙的外皮计算建筑面积。 请问此位置的面积是算到梁或墙内边呢还是外边,还有楼梯间的面积是否计算夹层墙的墙外皮。 说是那样说的,但实际应用中我所遇到的位置很难定论按照规则去断定。 赞0回复0 {{smallList.content}} 追问太多啦,答题者也需要休息喔 还有0条追问正在审核中,请稍后回来查看 7日内不再提醒积分奖励在答案审核后到账,以最终积分获取规则为准。
如何准确测量厂房面积?测量厂房面积时需要使用哪些工具?
在房产领域,尤其是工业地产中,准确测量厂房面积是至关重要的。 这不仅关系到租赁或购买合同的准确性,还直接影响到后续的生产布局和运营效率。 因此,掌握正确的测量方法和工具是每个相关人员必备的技能。 首先,测量厂房面积的基本步骤包括:确定测量范围、选择合适的测量工具、进行实地测量、记录数据并进行计算。 在开始测量之前,务必确保厂房内部没有大型设备或杂物阻挡,以便于测量的顺利进行。 在测量工具的选择上,以下几种是常用的: 工具名称用途特点激光测距仪测量长距离精度高,操作简便卷尺测量短距离便携,成本低水平仪确保测量平面的水平辅助工具,提高测量精度笔记本和笔记录测量数据必备,确保数据不丢失使用激光测距仪时,应确保仪器与测量目标之间无障碍物,以保证测量的准确性。 对于较大的厂房,可能需要多次测量并进行累加计算。 卷尺则适用于测量较小的区域或细节部分,如墙角、门窗等。 水平仪的使用可以确保测量过程中地面的水平,避免因地面不平导致的误差。 在实际操作中,建议先从厂房的外围开始测量,逐步向内部推进。 对于不规则形状的厂房,可以将其分割成多个规则的几何形状(如矩形、三角形等),分别测量后再进行面积的累加。 此外,记录测量数据时,应详细记录每个测量点的坐标和测量结果,以便后续的复核和计算。 对于复杂的厂房结构,可能需要多次测量和校正,以确保最终数据的准确性。 总之,准确测量厂房面积需要综合运用多种工具和方法,确保每个步骤的精确执行。 只有这样,才能为后续的租赁、购买或生产布局提供可靠的数据支持。 (责任编辑:刘畅) 【免责声明】本文仅代表作者本人观点,与和讯网无关。

高层住宅首层和二层层高均为4.5米,在首层和二层之间有一夹层(包括电梯井、电梯前室、走廊及楼梯间),夹层层高均大于2.2米,请问夹层建筑面积应怎样计算?楼梯间及电梯井是否计算建筑面积(楼梯间与电梯前室相通)? 库房夹层建筑面积疑问库房高10米,在库房里有一个报警阀间(顶板为150厚混凝土板),层高5.2米,按照GBT50353-2013建筑工程建筑面积计算规范,报警阀间位置该计算几次建筑面积,5.2米以上用不用再计算一次建筑面积?&注:计算规则里说的是二层及以上,本图为一层夹层。 请专家给予详解。 loft的夹层是否计算建筑面积(层高超过2.2)loft的夹层是否计算建筑面积(层高超过2.2)泳池的建筑面积怎样计算按照2005版建筑面积计算规范,这个泳池分别在两个自然层内,下层计算全部建筑面积,上层是不是要扣除泳池的净面积呢?附平面和剖面图,剖面图中红色圈内位置。 建筑面积计算工程为32层,一层高4.5米,在一层内有一局部夹层,夹层高1.8米楼梯是从地下室直接上到夹层的,请问在一层中,楼梯按一层面积计算后,夹层范围内是否还计算楼梯的建筑面积,怎么计算?建筑面积计算问题如图,GB/T50353-2005建筑面积计算规则中规定,建筑物内的操作平台、上料平台、安装箱、和罐体的平台不计算建筑面积,像厂房里的设备安装平台和卸料平台算不算面积?另外厂房里的管道间算不算面积?不是夹层。 相关搜索搜索这些会对您解决问题提供全新帮助。 答案已删除 尊敬的,您好! 举报已提交,我们将会尽快核实!谢谢 3秒后自动关闭弹窗 感谢采纳!很高兴能帮到您
“工业厂房计容面积计算规则”是什么?
“工业厂房计容面积计算规则”是什么?一、计容积率建筑面积一般不包括地下建筑面积公用设施面积及用于公用交,通活动场所的部分建筑面积.(如地下停车场;配电房;水泵房;骑楼下的架空层等)。 计容建筑面积计算规则,计容建筑面积指计入容积率的建筑面积,一般按照《建筑工程建筑面积计算规范》(GB/T50353—2005)规定的计算方式执行,出现下列情况的,执行本规则。 (1)居住建筑层高大于3.6米、小于或者等于5.8米(即3.6+2.2)的,不论层内是否设有夹层,其计容建筑面积按照该层水平...。 一、计容积率建筑面积一般不包括地下建筑面积公用设施面积及用于公用交,通活动场所的部分建筑面积.(如地下停车场;配电房;水泵房;骑楼下的架空层等)。 (1)居住建筑层高大于3.6米、小于或者等于5.8米(即3.6+2.2)的,不论层内是否设有夹层,其计容建筑面积按照该层水平投影面积的2倍计算;层高大于5.8米、小于或者等于8米(即5.8+2.2)的,不论层内是否设有夹层,其计容建筑面积按照该层水平投影面积的3倍计算;层高大于8米的,以此类推。 (2)跃层式居住建筑,其门厅、起居室、餐厅的通高部分不超过该层套内建筑面积的35%且小于或者等于7.2米的,该通高部分的计容建筑面积按照该层水平投影面积的1倍计算;通高部分超过该层套内建筑面积的35%或者大于7.2米的,按照本条第一款的规则计算。 (1)商业建筑(含各类配套服务建筑)按照单元式划分,单元面积小于3000平方米,层高大于5.1米、小于或者等于7.3米(即5.1+2.2)的,不论层内是否设有夹层,其计容建筑面积按照该层水平投影面积的2倍计算;层高大于7.3米、小于或者等于9.5米(即7.3+2.2)的,其计容建筑面积按照该层水平投影面积的3倍计算;层高大于9.5米的,以此类推。 (2)商业建筑(含各类配套服务建筑)按照单元式划分,单元面积大于或者等于3000平方米,层高大于6米、小于或者等于8.2米(即6+2.2)的,不论层内是否设有夹层,其计容建筑面积按照该层水平投影面积的2倍计算;层高大于8.2米、小于或者等于10.4米(即8.2+2.2)的,其计容建筑面积按照该层水平投影面积的3倍计算;层高大于10.4米的,以此类推。 办公建筑、酒店建筑层高大于5.1米、小于或者等于7.3米(即5.1+2.2)的,不论其层内是否设有夹层,其计容建筑面积按照该层水平投影面积的2倍计算;层高大于7.3米、小于或者等于9.5米(即7.3+2.2)的,不论其层内是否设有夹层,其计容建筑面积按照该层水平投影面积的3倍计算;层高大于9.5米的,以此类推。 建筑公共部分的门厅、大堂、中庭等有特殊功能需要的建筑通高部分按照一层计算计容建筑面积。 居住建筑底层架空部分净高大于或者等于3.6米,且仅用于绿化、公共休闲活动空间、公共通道等非经营性用途的,其面积不计入计容建筑面积,但计入项目的建筑面积。 阳台计算(1)套型建筑面积小于或者等于60平方米的住宅,其阳台进深大于2.4米的,或者每户阳台结构底板投影面积之和大于10平方米的,超出部分按照全面积计入计容建筑面积,未超出部分按照一半计入计容建筑面积;(2)套型建筑面积大于60平方米的住宅,其阳台进深大于2.4米的,或者每户阳台结构底板投影面积之和占该户套内面积的比例大于17%的,超出部分按照全面积计入计容建筑面积,未超出部分按照一半计入计容建筑面积;(3)住宅的空中院馆、空中花园、入户花园等,均按照本条前两项计算计容建筑面积;(4)公共建筑的封闭式阳台、封闭式走廊,按照其结构底板投影面积计入计容建筑面积;(5)空调室外机搁板沿阳台长边外侧设置的,该搁板按照阳台计入计容建筑面积;沿阳台短边外侧设置的,其宽度大于0.8米的部分按照阳台计入计容建筑面积。 飘窗计算:符合下列条件的飘窗,不计入计容建筑面积:(1)突出外墙面;(2)窗台板与室内地坪高差大于0.45米;(3)窗台板外边线至建筑外墙面距离小于或者等于0.8米。 不符合以上条件的,或者设置在外墙、楼面结构层投影面以内的飘窗,按照窗台板投影面积计入计容建筑面积。 花池计算(1)建筑计算高度小于或者等于24米的住宅建筑在外墙外或者阳台外设置花池时,花池底板高于室内地坪或者阳台地坪0.6米的,花池不计入计容建筑面积;花池底板距室内地坪或者阳台地坪小于0.6米的,或者在阳台结构底板内设置花池的,花池按照阳台规定计入计容建筑面积。 (2)建筑计算高度大于24米的住宅建筑在外墙外或者阳台外设置的花池,按照第六条的阳台规定计入计容建筑面积。 二、计容建筑面积计容建筑面积即等于规划建筑用地面积*计算容积率,小区内所有计算容积率的建筑面积之和!一般情况下,计容面积小于等于建筑面积,半地下室算一半计容面积,无产权地下室不计算计容面积。
标准厂房一消含夹层?
标准厂房一消含有夹层,夹层的高度一般为2.5米,宽度为3米,长度可根据实际需要调整。 标准厂房一消含夹层是一种结构紧凑的厂房,具有较高的结构安全性和节能效果。 它是由夹层和一消组成的,夹层由钢结构支撑,外墙由钢结构和夹层板组成,屋顶由钢结构和面板板组成,内部分为两部分,一部分是夹层,另一部分是一消。 夹层可以放置辅助设备,一消可以放置生产设备。 夹层和一消之间可以采用电梯、楼梯或悬挑桥梁等连接,使厂房内部更加紧凑,使各种生产设备节约楼层空间,有效提高厂房的利用率。 作为成都昱合升通风设备有限公司的工作人员,我可以提供以下参考图集供您参考:1.《建筑通风设备安装与维护图集》该图集由化学工业出版社出版,是关于通风设备设计、安装、调试和维护的参考指南。 它包括多种类型的通风设备和系统,如机械通风、自然通风、净...点击进入详情页 下载百度知道APP,抢鲜体验使用百度知道APP,立即抢鲜体验。 你的手机镜头里或许有别人想知道的答案。
肇庆市厂房加建钢结构夹层安全检测鉴定标准
肇庆市厂房加建钢结构夹层安全检测鉴定标准 一、钢结构验收内容: 根据建设部《房屋建筑工程竣工验收暂行规定》建建[2000]142号文件要求的程序予以确定。 1、钢结构工程施工单位应作出书面的钢结构施工质量自检评价报告。 报告中应对所施工房屋钢结构施工情况进行介绍,内容一般应主要有:工程设计变更、技术问题处理协议;工程定位、测量、放线;隐蔽工程验收,钢材进场验收;单层、多层及高层钢结构安装基础和支承面锚栓紧固及位置偏差;钢结构主体结构的整体垂直度和整体平面弯曲的允许偏差;高强度大六角头螺栓连接副、扭剪型高强度螺栓连接副、钢网架用高强度螺栓、普通螺栓等紧固件的品种、规格、性能;高强度螺栓连接摩擦面的抗滑移系数试验和复验,需进行的螺栓实物*小载荷试验检验,高强度螺栓连接副扭矩系数检验和复验;高强度螺栓紧固铀力(预拉力)复验;建筑结构安全等级为1级的和跨度≥40m钢网架节点承载力试验;钢网架完成后的挠度值测量;钢结构焊接超声波或射线探伤检验,钢结构防腐、防火涂装情况;钢材及焊接材料品种、规格、性能质量情况;钢结构安装的平面、竖向、节点联结的施工质量情况,柱脚及网架支座检查情况,钢结构房屋沉降观测情况,提出质量自检评定结果。 二、钢结构结构稳定性按照正常鉴定工作顺序 我们根据图纸对厂房整体结构布置和概况进行详细勘查,查勘房屋所采用结构形式是否符合设计图纸及国家规范规程,传力路线是否明确,结构布置是否合理,支撑系统是否完整、支撑系统长细比是否满足规范要求,因为这些都涉及到结构的稳定性问题。 而结构稳定性一直是钢结构的突出问题,一旦出现钢结构的失稳事故,不但会遭受巨大的经济损失,容易造成严重的人员伤亡。 我们必须了解结构稳定性的基本概念,只有这样我们才能在钢结构厂房安全鉴定工作中更好的发现和处理钢结构失稳问题。 钢结构的稳定可分为结构整体的稳定和构件本身的稳定两种情况。 结构整体的稳定,在结构的纵向,主要依靠结构的支撑系统来保证,如钢柱的柱间支撑,钢屋架的上、下弦水平支撑和垂直支撑等。 支撑系统能否可靠地传递结构纵向的水平荷载(风荷载、地震荷载、厂房吊车荷载等)。 横向,依靠结构自身(框架或排架)的刚度来保证,主要要考虑结构自身能可靠地传递结构横向的水平荷载。 而构件本身的稳定主要由构件组成部分的自身刚度来保证,要保证构件本身及其组成部份(杆件或板件)在荷载作用下不发生屈曲而丧失稳定(这种情况主要发生在受压或压弯构件上)。 构件本身的稳定因素主要是构件的计算长度和截面特性,包括平面内和平面外的两个方向,当然,还应该包括材料的强度和应力的大小。 它是一个变形问题。 如轴压柱,由于失稳,侧向挠度使柱中弯矩大量增加,柱子的破坏荷载可以远远低于它的轴压强度。 显然,轴压强度不是柱子破坏的主要原因。 (1)、厂房构件的高强螺栓连接质量,采用全站仪对构件连接部分的螺栓外漏丝扣进行符合。 (2)、厂房构件的焊接连接质量,采用超声波探伤的方法确定焊缝质量等级能否满足标准要求。 (3)、厂房构件的挠度变形,采用水准仪或拉线的方法确定变形量。 钢结构工程检测 关于钢结构厂房焊接检测: 一、焊前检验 焊前检验是指焊接实施之前准备工作的检验、包括原材料的检验,焊接结构设计的鉴定及其他可能影响焊接质量因素的检验(如焊工考试、电源的质量、工具和电缆的检查)。 检验应根据图纸要求和相应的国家标准及行业标准进行。 二、焊接过程中的检验 1.焊接的检验 焊接是指焊接过程中的工艺参数,如焊接电流、焊接电压、焊接速度、焊条(焊丝)直径、焊接的道数、层数、焊接顺序、能源的种类和极性等。 正确的规范是在焊前进行试验取得的。 对焊接规范的检查,不同的焊接方法有不同的内容和要求。 (1)手工焊的检验 一方面检验焊条的直径和焊接电流是否符合要求,另一方面要求焊工严格执行焊接工艺规定的焊接顺序、焊接道数、电弧长度等。 (2)埋弧自动焊和半自动焊焊接的检验 除了检查焊接电流、电弧电压、焊丝直径、送丝速度、焊接速度(对自动焊而言)外,还要认真检查焊剂的牌号、颗粒度、焊丝伸出长度等。 对于对焊,主要检查夹头的输出功率、通电时间、顶锻量、工件伸出长度、工件焊接表面的接触情况、夹头的夹紧力和工件与夹头的导电情况等。 电阻对焊时还要注意焊接电流、加热时间和顶锻力之间的相互配合。 电流过大或通电时间过长会使接头过热,降低其机械性能。
多层厂房设计规范有哪些?-【设计本有问必答
二、本规范适用于新建和改建、扩建的工业厂房设计,但不适用于以细菌为控制对象的生物洁净室。 本规范有关防火和疏散、消防设施章节的规定,不适用于建筑高度超过24米的高层工业厂房和地下工业厂房的设计。 三、条在利用原有建筑进行洁净技术改造时,工业厂房设计必须根据生产工艺要求,因地制宜、区别对待,充分利用已有的技术设施。 四、工业厂房设计应为施工安装、维护管理、测试和安全运行创造必要的条件。 五、工业厂房设计除应按本规范执行外,尚应符合现行的国家标准、规范的有关要求。 六、工业厂房是由独立一栋建筑物(车间),和独立一栋建筑物(宿舍),两栋建筑物之间距离标准是10米,最近不得少于5米,以便消验收合格。 采用轻型围护结构 彩色涂层的压型钢板和夹芯金属板,以其自重轻,保温隔热效果好,安装速度快,外表美观的优点,已经取代传统多层厂房的砌体围护墙体,成为多层轻钢厂房不可缺少的围护材料。 轻型围护结构有利于大幅度减轻结构自重和降低对基础的要求。 层高与柱网尺寸大 相对多层民用建筑,多层轻钢厂房根据工艺要求,层高比较大,一般为4-8m。 如一个4层厂房的高度可相当于8层民用建筑,多层轻钢厂房内部空间大,

还没有评论,来说两句吧...