钢结构基础柱顶是否锚固图集(钢结构基础柱柱顶钢筋锚固的相关规范)
在建筑行业中,钢结构因其轻质高强和施工速度快等特点而被广泛采用。为了确保钢结构的稳固性和安全性,对基础柱顶的钢筋锚固提出了严格的规范要求。本文将介绍钢结构基础柱顶钢筋锚固的相关规范,包括锚固图集的具体内容和实施标准。需要了解的是,锚固图集中包含了各种不同类型和规格的基础柱顶钢筋的锚固方法和步骤,以确保它们能够牢固地固定在混凝土基础上。这些规范还规定了钢筋的选择、布置、连接方式以及施工过程中的质量控制措施。对于施工人员来说,了解并遵守这些规范是保证工程质量的关键。钢结构基础柱顶的钢筋锚固是一个至关重要的环节,必须严格按照相关规范进行操作,以确保建筑物的安全和稳定性。
钢结构基础柱顶是否锚固图集
钢结构基础柱柱顶钢筋锚固的相关规范和要求可以在《建筑结构设计规范》(GB50009)中找到。以下是关于钢结构基础柱柱顶钢筋锚固的一些详细信息:
锚固长度的要求
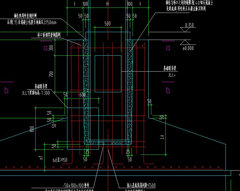
1. 中柱纵向钢筋的锚固
- 中柱纵向钢筋伸至柱顶后弯锚12d,伸入长度≥0.5labE(基本抗震锚固长度),内向对弯。
- 当中柱柱顶有≥100mm厚板时,伸至柱顶后弯锚12d,伸入长度≥0.5labE,可外向弯折。
- 中柱纵向钢筋端部可加锚板,伸入长度≥0.5labE。
- 当顶部板厚≥柱筋laE时,可直接伸至柱顶部,后不用弯折。
2. 框架柱纵向钢筋的锚固
- 框架纵向钢筋伸入基础的锚固长度不小于LaE,钢筋下端应伸至基础底部90水平弯曲,弯曲后水平投影长度为6d且不小于150mm。
- 当基础高度不能满足直锚要求时,柱纵向钢筋伸入基础内的直段投影数据长度不应小于0.6LabE且不小于20d,纵筋下端90水平弯折15d支承在基础以及底部钢筋网片。
锚固长度的影响因素
1. 混凝土强度
- 柱筋的锚固长度受到混凝土强度的影响。《建筑结构设计规范》(GB50009)中的图4.2.5列出了不同直径的钢筋在不同混凝土强度下的最小锚固长度要求。
2. 钢筋直径
- 钢筋的直径也是决定锚固长度的一个重要因素。不同的钢筋直径有不同的锚固长度要求。
特殊情况下的锚固处理
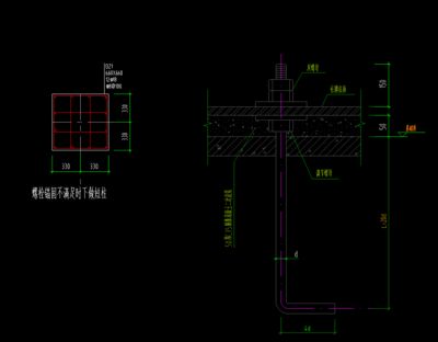
1. 存在柱帽的情况
- 柱帽的存在会影响柱筋的锚固长度。柱帽会阻碍钢筋的伸长,从而影响钢筋与混凝土之间的黏结力。因此,有柱帽的柱筋锚固长度应该比没有柱帽的柱筋锚固长度要长。
2. 在孔内有水的情况下
- 在孔内有水的情况下,可以采取以下方法进行锚固钢筋:采用低塌落度的水泥砂浆,并在施工前确保孔内无水,可有效防止塌孔;在水中采用套管法,将有一定刚度的钢管或硬塑料管,一端插入锚杆位置的孔中,另一端露出水面,并用中速水泥砂浆封孔。
结论
综上所述,钢结构基础柱柱顶钢筋的锚固长度受到多种因素的影响,包括钢筋直径、混凝土强度以及是否存在柱帽等。在实际工程中,需要根据设计要求和规范要求进行具体的计算和设计。相关的规范和图集,如《建筑结构设计规范》(GB50009),提供了详细的锚固长度要求和计算方法。
钢结构基础柱锚固长度计算
混凝土强度对锚固影响
柱帽存在时锚固处理方法

钢结构基础柱锚固规范解读





还没有评论,来说两句吧...