短柱上面是框架柱短柱需要弯锚吗?(短柱上面是框架柱时,短柱的钢筋通常需要弯锚)
温馨提示:这篇文章已超过439天没有更新,请注意相关的内容是否还可用!
在建筑结构中,框架柱的设置是为了增强结构的承载能力和稳定性。当短柱位于框架柱之上时,其钢筋配置需要特别注意以确保安全和有效。根据现行的建筑规范,短柱上的钢筋通常需要进行弯锚处理。这是因为弯锚可以有效抵抗由于地震、风荷载等自然力引起的水平力作用,从而保护整个框架结构的稳定性。在进行短柱的设计和施工时,必须遵循相关的建筑规范和标准,确保所有钢筋的正确配置和使用。
短柱上面是框架柱短柱是否需要弯锚
根据提供的搜索结果,短柱上面是框架柱时,短柱的钢筋通常需要弯锚。以下是详细解释:
弯锚的定义与作用
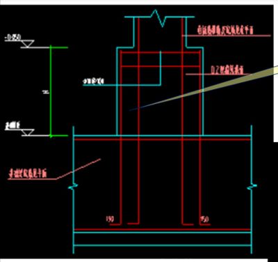
弯锚,即钢筋端部的弯钩,其主要作用是增加钢筋在混凝土中的锚固长度,防止钢筋在受力时被拔出。在钢结构基础短柱中,弯锚的设计和施工必须符合相关规范要求,以确保建筑结构的稳固性和安全性。
弯锚的规范要求
- 弯锚的长度:根据国家标准,弯锚的长度应根据钢筋直径和混凝土强度等级来确定。一般来说,弯锚的长度不应小于钢筋直径的多少倍,具体数值可参考相关施工规范。
- 弯锚的角度:弯锚的弯曲角度也是一个重要的参数。通常情况下,弯锚应呈90度角,以确保钢筋与混凝土之间的最大粘结力。在某些特殊情况下,也可以根据设计要求适当调整弯曲角度。
短柱顶部钢筋的弯锚要求
- 独立基础短柱顶端是否做弯钩:独立柱顶部无梁时是弯钩,执行达到规范要求,则不需要弯锚,如果钢筋不能够伸入梁内,则必须弯锚。独立柱顶端的受压钢筋能够锚入顶层梁内且直锚长度能够达到规范要求,则不需要弯锚,钢筋不能够伸入梁内,则必须弯锚。
- 钢结构厂房基础独立短柱顶端用弯钩吗:钢结构短柱顶部钢筋不可以不弯锚。钢结构基础短柱是独立的混凝土柱,其顶部锚固可参考框架柱顶部节点的钢筋锚固方式,即顶部钢筋向内侧弯锚,满足锚固长度要求即可。
总结
综上所述,短柱上面是框架柱时,短柱的钢筋通常需要弯锚,以确保结构的安全性和稳定性。具体的弯锚要求应根据相关施工规范和设计要求来确定。在施工过程中,还需要注意安装和加固,以保证锚固弯钩的效果,并确保结构的稳定性和安全性。
短柱弯锚长度规范标准
框架柱钢筋锚固长度要求
短柱弯锚角度设计规范
钢结构短柱锚固方式选择


还没有评论,来说两句吧...