15米跨度钢结构厂房图纸(15米跨度钢结构厂房图纸的网站:钢结构厂房造价预算)
15米跨度钢结构厂房图纸,通常指的是用于建造具有15米跨度的钢结构厂房的建筑蓝图。此类图纸详细描述了厂房的结构设计、尺寸、材料规格以及施工细节,确保建设过程的顺利进行和最终建筑的质量。,,钢结构厂房造价预算则涉及对钢结构厂房整个建设过程中成本的预估,包括材料费、人工费、运输费等所有相关费用。这些成本因素会影响最终的建设价格,因此在进行投资决策时,必须综合考虑。,,钢结构厂房图纸是指导施工的重要文件,而造价预算则是评估项目可行性和成本控制的关键。两者共同作用,确保工程的顺利实施和经济效益的最大化。
以下是包含15米跨度钢结构厂房图纸的网站:
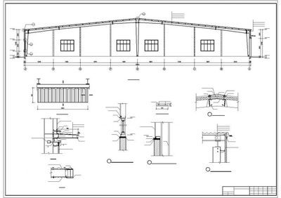
- ( ),该网站提供了多种钢结构厂房的CAD图纸,包括但不限于平面图、立面图、屋顶平面图、建筑节点详图、基础平面图、基础详图、钢结构设计总说明、屋顶檩条布置图、屋面结构布置图、檩条布置图、GJ详图、构件详图等。
 - ( ),该网站提供了15米跨钢结构厂房建筑结构设计图,图纸包括:建筑图:说明及门窗表、平面图、屋顶平面及立面图、立面及剖面图共4张图纸;结构图:钢结构设计说明、基础平面布置图、屋面檩条布置图、刚架及屋面结构布置图、刚架图14张图纸。
 - ( ),该网站提供了某15米跨钢结构厂房结构设计图的设计作品免费下载服务,同时还有某15米跨钢结构厂房结构设计图的图片、素材、模板等设计素材。
 
钢结构厂房造价预算
钢结构厂房施工流程
钢结构厂房维护保养

钢结构厂房设计规范





还没有评论,来说两句吧...