钢结构基础短柱配筋
钢结构基础短柱配筋是指在钢结构建筑中,为了确保结构的安全性和稳定性,对基础短柱进行的钢筋布置和设计。这种钢筋布置通常包括在基础短柱的四个侧面和底部进行钢筋配置,以提高其承载能力和抗震性能。,,在进行钢结构基础短柱配筋时,需要考虑的因素包括基础短柱的高度、宽度、长度以及混凝土的强度等级等。还需要根据建筑物的荷载要求和地震烈度等因素来确定钢筋的直径、间距和数量。,,钢结构基础短柱配筋还需要考虑施工工艺和成本因素。在施工过程中,需要采用合理的钢筋布置方式和施工方法,以确保钢筋的正确安装和固定。还需要考虑到钢筋的成本和施工难度等因素,以实现经济性和可行性的平衡。
钢结构基础短柱配筋
在钢结构基础设计中,短柱的配筋是一个重要的环节,它直接影响到整个结构的安全性和稳定性。以下是关于钢结构基础短柱配筋的一些详细信息。
配筋率要求
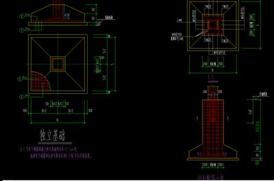
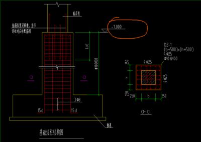
根据《建筑地基基础设计规范》(GB50007-2011)第8.2.5条,短柱四角纵向钢筋的直径不宜小于20mm,短柱每边的配筋率不少于0.05%短柱的截面面积。
设计注意事项
- 刚度要求:基础上短柱截面刚度(EI)不应小于被支承构件截面刚度的10倍。
- 配筋构造:独立基础底部配筋构造及计算是一个复杂的过程,需要考虑集中标注和原位标注等信息。
实际应用案例
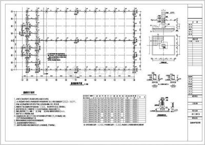
在实际工程中,例如单层单跨的有吊车的厂房,基础埋深1.5m,如果基础高1.2m,工字型钢柱高是12m,钢柱与基础连接是否需要设置短柱,取决于具体的设计要求和规范。如果不设置短柱,施工方法可能需要特别注意,以确保结构的安全。
钢筋配筋软件
使用专业的钢筋深化设计和钢筋混凝土施工管理BIM软件,如Tekla,可以大大提高配筋的准确性和效率。Tekla可以帮助用户高效地交流、协调和传递信息,提高钢筋混凝土结构的钢筋装配和施工效率。
结论
钢结构基础短柱的配筋设计需要严格按照相关规范进行,同时结合实际工程情况进行调整。使用专业软件可以辅助设计和施工,提高整体效率和准确性。
钢结构短柱配筋设计要点
钢结构基础短柱配筋规范解读
Tekla软件在配筋中的应用

钢结构短柱与基础连接技术





还没有评论,来说两句吧...