钢结构仓库图纸(钢结构仓库图纸的相关网址:钢结构仓库施工流程)
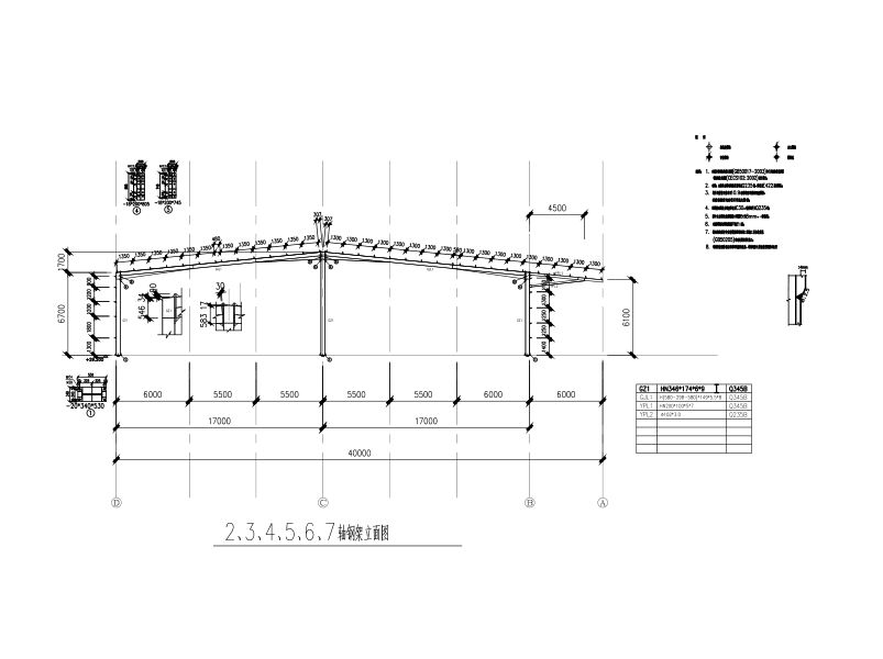
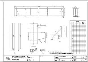
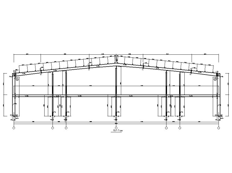
钢结构仓库图纸是用于指导和规划建造钢结构仓库的重要文件。它详细描述了仓库的结构设计、构件规格、材料要求及施工流程。这些图纸通常包括平面图、立面图、剖面图、节点详图以及相关的施工说明等。,,钢结构仓库的施工流程一般开始于设计阶段,之后进入采购材料和施工准备阶段。在施工过程中,首先进行基础施工,然后按照钢结构图纸进行主体结构安装,包括柱子、梁、桁架等。接着进行屋面和墙体的施工,以及内部隔墙的搭建。最后进行电气、给排水等系统的安装,并进行验收和交付使用。,,钢结构仓库因其强度高、自重轻、施工速度快等优点,被广泛应用于工业仓储、物流中心等领域。
以下是钢结构仓库图纸的相关网址:
- 土木在线( ),提供了丰富的钢结构仓库图纸资源,包括基础平面布置图、钢架平面布置图、屋檩平面布置图、锚栓平面布置图、墙檩立面布置图、基础祥图、以及各构件祥图等。
- 1688( ),提供了钢结构仓库制钢结构图纸设计材料,包括钢结构设计说明、基础平面布置图、基础详图、地脚锚栓布置图、屋面结构布置图,钢架大样图,柱间支撑布置图,墙面檩条布置图,屋面檩条布置图等。
钢结构仓库造价预算
钢结构仓库施工流程
钢结构仓库维护保养

钢结构仓库设计规范





还没有评论,来说两句吧...