25米钢结构跨梁(25米跨度的钢结构梁设计需要综合考虑多个因素)
25米跨度的钢结构跨梁设计需要综合考虑多个关键因素。结构的稳定性和强度是设计的首要考虑点,以确保桥梁能够承受预期的最大载荷而不发生破坏。这涉及到选择适当的材料(如钢材或混凝土),并应用正确的力学原理来确保结构的刚性和韧性。,,经济性也是一个重要的考量因素。设计师需要考虑成本效益比,包括材料、制造、运输和维护等所有相关费用。可持续性和环境影响也应纳入设计过程中,以减少对环境的影响并促进资源的合理利用。,,安全标准和法规也是设计中不可或缺的一部分。设计必须符合国家或国际的安全标准,以及任何相关的建筑法规和条例。这可能涉及对桥梁进行详细的荷载分析,确保其能够抵御各种潜在的风险和威胁。,,25米跨度的钢结构跨梁设计是一个复杂的过程,需要综合考虑多个因素,以确保结构的安全性、稳定性、经济性和合规性。
25米钢结构跨梁设计
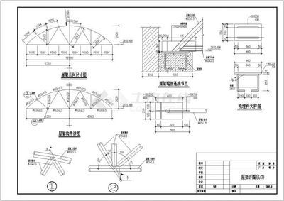
对于25米跨度的钢结构梁,其设计需要考虑多个因素,包括梁的截面尺寸、材料选择、荷载情况以及具体的建筑用途等。以下是根据提供的搜索结果整理的一些关键信息:
梁的截面尺寸
根据搜索结果,25米跨度的钢结构梁,其截面高度通常应在400mm至550mm之间。具体来说,H型钢梁的截面尺寸应该大于或等于400mm×400mm,梁的高度应大于或等于400mm。此外,H型钢梁的抗弯刚度应大于或等于1.2×10^8N·m2,抗压强度应大于或等于2.5×10^8N。
材料选择
常用的钢材型号包括Q345B和Q235B。Q345B表示钢材的抗拉强度为345MPa,而Q235B表示钢材的抗拉强度为235MPa。在选择梁型号时,需要考虑梁的设计荷载、梁的抗拉强度、抗弯强度、抗剪强度等因素。
结构类型
除了H型钢梁,还可以考虑使用双T型钢梁或单T型钢梁。双T型钢梁的型号一般为Q345B,而单T型钢梁的型号一般为Q235B。在某些情况下,也可以使用工字钢或其他类型的钢结构梁。
设计注意事项
在设计25米跨度的钢结构梁时,还需要考虑以下因素:
- 柱子宽度:柱子的宽度会影响梁的设计,特别是在有中间立柱的情况下。
- 荷载情况:包括均布荷载、集中荷载、雪荷载、风荷载等。
- 挠度要求:梁的容许挠度通常是跨度的1/400。
- 连接方式:梁与柱的连接方式也会影响梁的设计。
具体案例
在某个具体的工程项目中,25米跨度的钢结构梁采用了40工字钢作为主要承重构件,并结合了中间立柱的支持。这种设计在确保结构稳定性和承载能力的同时,也考虑了经济性和实用性。
综上所述,25米跨度的钢结构梁设计需要综合考虑多种因素,包括截面尺寸、材料选择、荷载情况和具体建筑用途等。在实际设计过程中,应根据具体情况进行详细的计算和分析,以确保结构的安全性和经济性。
钢结构梁挠度控制标准
钢结构梁荷载计算方法
钢结构梁材料性能对比

钢结构梁经济性优化策略





还没有评论,来说两句吧...