钢结构雨棚变形缝间距(钢结构雨棚变形缝的间距应根据具体要求和规范和规范)
温馨提示:这篇文章已超过448天没有更新,请注意相关的内容是否还可用!
钢结构雨棚设计中,变形缝的设置是确保结构稳定性和延长使用寿命的关键因素。变形缝间距的选择需依据具体的建筑要求、规范以及地区标准来定。合理的间距能够有效控制雨水渗透和温度变化对建筑物的影响,防止因温差引起的裂缝扩展。在设计时,工程师需要综合考虑多种因素,如气候条件、材料特性及预期的使用年限,以确保设计的可行性和安全性。精确的计算和专业的设计是保证钢结构雨棚性能的关键。
钢结构雨棚变形缝间距
在钢结构雨棚的设计和施工过程中,变形缝的设置是非常重要的,它能够有效地减小由于温度变化、内力或变形等原因引起的结构变形,从而保证结构的稳定性和安全性。以下是关于钢结构雨棚变形缝间距的一些具体要求和规范:
1. 变形缝的基本概念
变形缝是为了防止建筑物因受温度变化的影响而产生热胀冷缩,进而因变形较大并受到约束而开裂而人为设置的适当宽度的缝隙。在钢结构雨棚中,变形缝的设置同样重要,它可以有效地释放结构中的变形能量,避免因变形过大而导致的结构破坏。
2. 钢结构变形缝的设置规范
在我国的建筑钢结构规范中,变形缝的设置有一系列的规范。例如,钢结构长度超过40m时,需要设置变形缝,且缝的间距一般应该在30-50m之间。
3. 影响变形缝间距的因素
变形缝的数量和设置位置应依据结构特点、相互转角和计算热变形伸缩量。此外,变形缝的位置长度应考虑结构受温度影响而引起的变形。针对不同类型的结构,规范中也给出具体的长度。
4. 特殊情况下的变形缝设置
在地震等容易产生大变形作用下,应按照规范提高变形缝的强度。变形缝的设计应考虑气象、地质、水文等因素对结构的影响。变形缝的设置也应考虑对建筑内部的隔音效果及防火隔离的要求。
5. 钢结构雨棚变形缝的具体设置
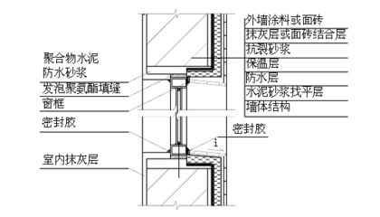
对于钢结构雨棚,由于其特殊的使用环境和功能要求,变形缝的设置还需要考虑雨水的渗透和排水问题。变形缝的构造应在不影响结构单元之间位移的前提下,满足其围护性能、耐久性能和装饰性能。根据墙的厚度,变形缝可做成平缝、错口缝或企口缝,如图1所示。墙体较厚时,应采用错口缝或企口缝,有利于保温和防水。但抗震缝应做成平缝,以便适应地震时的摇摆。
综上所述,钢结构雨棚变形缝的间距应根据具体的结构特点、使用环境和功能要求来确定,同时还需要考虑温度变化、地震等因素的影响。在设计和施工过程中,应严格按照相关规范进行设置,以确保结构的安全性和稳定性。
钢结构雨棚变形缝设计要点
钢结构雨棚防震缝设置规范
钢结构雨棚变形缝材料选择

钢结构雨棚变形缝维护方法





还没有评论,来说两句吧...