混凝土如何加固防水层(混凝土保护层的加固和防水处理是确保建筑物结构安全和延长使用寿命的重要措施)
混凝土结构加固防水层是确保建筑物安全和延长使用寿命的关键措施。通过在混凝土保护层上施加额外的钢筋,可以增强其承载能力和抗裂性。使用防水剂或涂层处理混凝土表面,可以有效防止水分渗透,减少腐蚀和微生物生长的风险。这些方法不仅提高了混凝土的耐久性和稳定性,还有助于降低维护成本,并提高建筑物的整体性能。
混凝土加固防水层的方法
混凝土保护层的加固和防水处理是确保建筑物结构安全和延长使用寿命的重要措施。以下是几种常见的混凝土加固防水层的方法:
表面处理
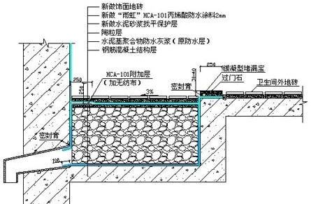
在施工防水涂料之前,必须确保混凝土表面干净、光滑且没有任何尘土、油污和杂物。根据实际情况,可以采用高压水枪冲洗、清洁剂清洗或其他方式清洁混凝土表面。然后,使用混凝土表面处理剂对表面进行处理,以提供良好的附着力。
施工防水涂料
在施工防水涂料之前,必须先搅拌均匀。根据涂料的使用说明,使用适当的工具将防水涂料搅拌均匀,确保涂料中的颜料、填料和助剂充分混合。使用毛刷或滚筒刷将防水涂料均匀地涂抹在混凝土表面上。根据涂料的使用要求,可以进行多遍涂刷,确保涂料的厚度和覆盖面积达到要求。让第一层涂料完全干燥后,可以进行第二遍甚至更多遍的涂刷。每一遍涂刷之间需要有足够的干燥时间,以确保涂料能够有效地附着在混凝土表面上。
涂层保护
在施工完成后,需要进行涂层保护,以防止在施工过程中对涂层的损坏。避免重物撞击涂层,使用防撞护角等保护装置,防止刮擦和损坏。避免水分侵入,在施工期间和涂层完全干燥之前,避免水分侵入,使用防雨棚等措施进行保护。
加固方法
如果混凝土保护层的厚度不足,可以采用以下加固方法:
抹灰处理:对需要补厚部位的混凝土进行凿毛处理,挂设直径0.5-2mm、网格尺寸5-25mm的矩形钢丝网。用压力水进行清洗,待完全干燥后刷一道结构胶避免开裂,随后使用高一强度等级的水泥砂浆抹灰处理,并进行不少于7d的养护。这样可以保证抹灰层的耐久性与强度,恢复保护层的部分功能。
增加保护层厚度:如果砼梁保护层厚度不足的情况不严重,可以考虑在砼梁外表面增加保护层厚度,以达到规定的厚度要求。如果情况较严重,则需拆除保护层不足的部分,接着在剩余部分上加涂防护材料,并且在新加涂的防护材料上再加一层防护网,以确保新涂层的胶粘性和耐磨性。
采用加固材料:可以选择碳纤维布加固或粘钢加固。碳纤维布具有强度高、重量轻、耐腐蚀等优点,能够有效地提高混凝土结构的承载能力和耐久性。粘钢加固需要对混凝土表面和钢板进行处理,将钢板牢固地粘贴在混凝土构件的表面,并采取有效的固定措施,如使用化学锚栓等进行辅助固定。
质量检验
加固完成后,需检查加固材料与混凝土的粘结程度。例如,对于碳纤维布加固,查看碳纤维布与混凝土之间是否粘结牢固,有无空鼓、翘边等现象;粘钢加固需检查钢板与混凝土间的粘结状况,确保粘结可靠。
通过上述方法,可以有效地对混凝土进行加固和防水处理,从而提高建筑物的安全性和耐久性。
混凝土防水层施工注意事项
防水涂料选择指南
混凝土表面处理技巧

加固材料性能比较





还没有评论,来说两句吧...