彩钢结构设计图(彩钢结构设计图、钢架结构设计图、钢架结构厂房设计图)
彩钢结构设计图是用于指导彩钢建筑的建造过程的设计文件,它包括了对建筑物的详细尺寸、形状、结构布局以及所需材料的详细说明。在设计过程中,建筑师和工程师会考虑多种因素,如环境条件、使用功能以及安全规范等。彩钢厂房设计图则更加侧重于生产设施的布局,确保生产线的顺畅运作和员工的安全性。这些图纸通常需要经过严格的审查和批准流程,以确保符合建筑规范和安全标准。

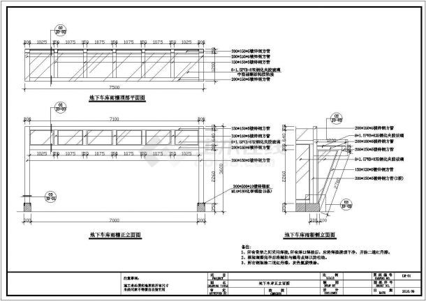
彩钢结构设计图是一种详细描述彩钢结构建筑的设计图纸,它包括了钢结构彩钢包边件节点设计图、彩钢板及钢架结构节点设计图、彩钢瓦支架结构设计图纸、室外钢结构彩钢复合板库房设计图、小型轻体钢结构(彩钢房)设计图纸、钢结构彩钢板安装节点CAD设计图、彩钢板及钢架结构厂房设计图等多种类型。这些设计图通常包含了详细的结构说明、平面布置图、立面图、剖面图等,为设计师和工程师提供了重要的参考资料。网址:




彩钢结构设计软件推荐
钢结构厂房造价预算
彩钢房施工注意事项
钢结构设计规范标准

还没有评论,来说两句吧...