房屋框架结构图在规划馆叫什么
房屋框架结构图在规划馆中通常被称为**“建筑蓝图”或“竣工蓝图”**。,,房屋框架结构图是建筑设计和施工的重要参考文件,它详细记录了建筑物的骨架布局。通过这些图纸,工程师和建筑师可以精确地设计出建筑物的每一个部分,确保结构的安全性和稳定性。对于规划馆来说,拥有一套完整的房屋结构图不仅可以帮助参观者了解建筑的历史和发展,还可以提供专业的技术支持,帮助解决实际的建筑问题。

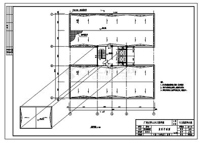
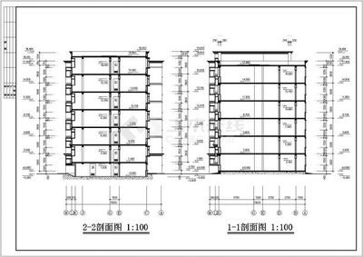
房屋框架结构图在规划馆中通常被称为“建筑结构图”或“结构施工图”。这些图纸详细展示了房屋的框架结构,包括梁、柱、板等主要承重构件的位置、尺寸和连接方式。在规划馆这样的公共建筑中,框架结构图可能还会涉及到更多的细节,比如与展览功能相关的特殊结构设计。
例如,根据搜索结果,某市规划馆的建筑结构被描述为“框架剪力墙结构”,并且提到了建筑面积、层数和建筑总高度等信息。这类信息通常都会包含在建筑结构图中,以便于施工和后期维护。
总结来说,房屋框架结构图在规划馆中就是指展示建筑框架结构的详细图纸,它对于建筑的施工、管理和维护都非常重要。




规划馆建筑结构图的获取途径
框架剪力墙结构的特点介绍
建筑结构图在施工中的应用
规划馆建筑设计的创新案例

还没有评论,来说两句吧...