砖混结构室内窗洞能改成门洞吗(砖混结构室内窗洞可以改成门洞吗)
温馨提示:这篇文章已超过405天没有更新,请注意相关的内容是否还可用!
在砖混结构中,室内窗洞是否可以改成门洞取决于多种因素。必须确保更改后的门洞不会对建筑的结构完整性和安全性造成影响。需要考虑到窗户与门的尺寸、位置是否匹配以及是否符合建筑规范。还需评估改动后的功能需求,如通风、采光等,以确保改造后的门洞能满足这些要求。如果改动符合上述所有条件,并且得到建筑师或工程师的认可,那么就可以开始施工了。

砖混结构室内窗洞能否改成门洞
砖混结构的室内窗洞是可以改成门洞的。砖混结构中,承重墙是不能随意改动的,而非承重墙则可以进行适当的改造。在改造过程中,需要注意的是,即使是在非承重墙上开门洞,也需要考虑到结构的安全性,并采取相应的加固措施。
改造注意事项
在将窗洞改成门洞时,需要注意以下几点:
承重墙与非承重墙的区别:砖混结构中的承重墙是建筑物的主要支撑部分,通常不能拆除或大幅改动。而非承重墙则可以根据需要进行改造。
加固措施:即使是非承重墙,开门洞也可能需要采取加固措施,如使用碳纤维或粘钢加固,以确保结构的稳定性。
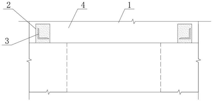
过梁的设置:在开门洞之前,需要在门洞的顶部设置过梁,以支撑上部结构。过梁的规范一边搭接是24CM。
审批手续:在进行任何结构性的改造之前,都应该咨询专业的工程师或建筑师,并可能需要获得相关部门的批准。
结论
综上所述,砖混结构的室内窗洞可以改成门洞,但需要考虑到结构安全和必要的加固措施。在进行改造前,最好咨询专业人士并了解当地的法规和审批流程。




砖混结构加固方法有哪些
承重墙与非承重墙区别详解
室内改造审批流程指南
过梁设置规范及要求

还没有评论,来说两句吧...