砖混结构圈梁搭接长度要求(砖混结构圈梁搭接长度要求是确保建筑结构安全的重要参数)
温馨提示:这篇文章已超过476天没有更新,请注意相关的内容是否还可用!
砖混结构中,圈梁的搭接长度是影响建筑安全的关键因素。根据相关规范和标准,圈梁的搭接长度应满足设计要求,以确保结构的完整性和稳定性。在施工过程中,施工单位需要严格按照设计图纸和技术规范进行操作,确保圈梁的搭接长度符合规定要求。监理单位要加强对施工现场的监督检查,确保施工质量达到设计和规范要求。

砖混结构圈梁搭接长度要求
砖混结构圈梁的搭接长度要求是确保建筑结构安全的重要参数。以下是根据提供的搜索结果得出的具体要求:
搭接长度的基本要求
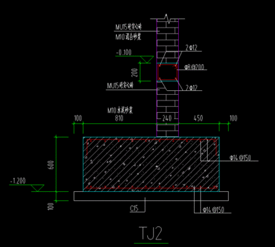
圈梁钢筋的搭接长度应满足一定的规范要求。一般来说,圈梁绑扎接头的搭接长度应按受拉钢筋考虑,箍筋间距不宜大于300mm。这意味着在实际施工中,需要根据钢筋的直径来确定搭接长度。例如,当钢筋的直径不大于25mm时,搭接长度应不少于25个直径;当直径大于25mm时,搭接长度应不少于30个直径。
构造柱和圈梁的搭接长度
对于砖混结构中的构造柱和圈梁,搭接长度也有具体的要求。根据12G614-1砌体填充墙结构构造第5.6.1条规定,构造柱、水平系梁纵向钢筋采用绑扎搭接时,全部纵筋可在同一连接区段搭接,钢筋搭接长度为50d。这意味着在砖混结构中,构造柱和圈梁的搭接长度应该是钢筋直径的50倍。
其他相关要求
除了搭接长度,还有一些其他的构造要求需要考虑。例如,圈梁应连续地设在同一水平面上,并形成封闭状。当圈梁被门窗洞口截断时,应在洞口的上部增设一些相同截面的附加圈梁。附加圈梁与圈梁的搭接长度不应小于其中到中垂直间距的2倍,且不得小于1m。
结论
综上所述,砖混结构圈梁的搭接长度要求是一个综合性的指标,需要根据钢筋的直径、结构设计要求以及具体的施工条件来确定。在实际操作中,应严格遵守相关的建筑规范和技术标准,以确保建筑物的安全性和稳定性。




砖混结构圈梁搭接长度规范
圈梁钢筋搭接长度计算方法
构造柱搭接长度与圈梁关系
圈梁搭接长度对结构安全影响

还没有评论,来说两句吧...