钢结构阳光房施工图
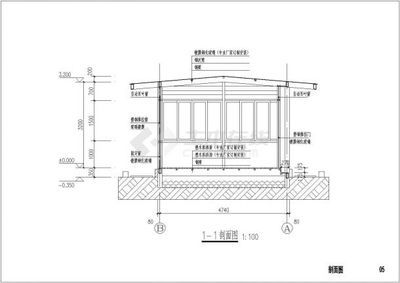
钢结构阳光房施工图是一份详细的设计文件,它包含了建造一个钢结构玻璃阳光房所需的所有技术细节和规格。这份施工图通常由专业的建筑师或工程师根据客户的需求和场地条件制定,以确保设计的实用性、安全性和美观性。,,在这份施工图中,会详细描述阳光房的结构组成,包括钢梁、钢柱、玻璃窗、遮阳设施等。也会说明材料的选择和规格,如使用什么样的钢材,玻璃的类型和厚度等。施工图还会包括施工过程中的步骤、工艺要求、安装方法以及安全措施等。,,钢结构阳光房施工图是一个非常重要的工具,它可以确保阳光房的建设按照设计要求进行,同时也能保证工程质量和使用寿命。

以下是钢结构阳光房施工图的相关网址:土木在线( ),提供了丰富的钢结构阳光房施工图资源,包括单层钢结构阳光房建筑结构设计施工图、钢结构阳光房晾衣房全套施工图、某地农庄室外阳光房建筑结构施工图等。




钢结构阳光房造价预算
阳光房施工注意事项
钢结构材料选择指南
阳光房维护保养方法

还没有评论,来说两句吧...