什么叫桁架结构设计
温馨提示:这篇文章已超过421天没有更新,请注意相关的内容是否还可用!
桁架结构设计是**一种在建筑和工程领域中广泛应用的结构形式,旨在通过杆件的合理布置和连接,实现结构的强度、稳定性和美观性**。桁架结构以其独特的受力特性和施工便利性,在各种大跨度建筑中发挥着重要作用。桁架结构设计的核心在于确保结构的安全性、满足规范要求、考虑美学因素以及进行有效的施工监督。,,桁架结构设计的基本要素包括结构安全性、建筑规范遵守、美学要求、施工监督和合格验收。这些要素共同构成了桁架结构设计的全面框架,确保了设计的合理性和可行性。,,桁架结构的设计和分析需要考虑其高度、厚度和失高等参数,以确保结构的稳定性和强度。立体桁架的高度通常取跨度的1/12至1/16之间,而拱架的厚度和失高则根据跨度的不同进行调整。这种细致的设计考虑不仅保证了结构的安全,还提高了材料利用效率,降低了成本。,,桁架结构的设计还需要考虑其可焊接性,以便在实际施工中进行快速、准确的连接。选择材料时需考虑成本效益,力求在保证结构性能的同时,控制项目的经济预算。,,桁架结构因其独特的受力特性,在各种大跨度建筑中得到广泛应用。无论是工业厂房、展览馆、体育馆还是桥梁,桁架结构都以其卓越的性能满足了这些建筑的功能需求。特别是在公共建筑领域,如屋盖结构,桁架结构由于其良好的抗弯性能和抗剪能力,能够有效地抵抗内力分布,实现结构的整体性和经济性。,,桁架结构的设计和应用案例丰富多样,从经典的三角桁架到现代的空间桁架,每一种形式都有其独特的设计理念和应用场景。这些案例不仅展示了桁架结构的多样性和灵活性,也反映了其在现代建筑技术中的创新和发展。,,桁架结构设计是一项复杂而精细的工作,涉及到结构安全性、规范遵循、美学考量、施工监督和成本效益等多个方面。通过对这些要素的综合考虑和精心设计,桁架结构能够在满足功能需求的同时,展现出其独特的美学价值和经济优势。

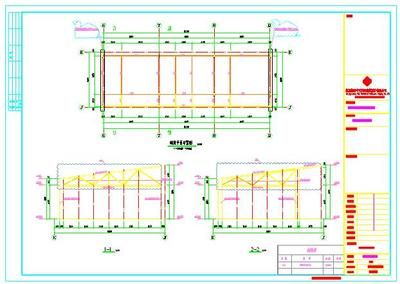
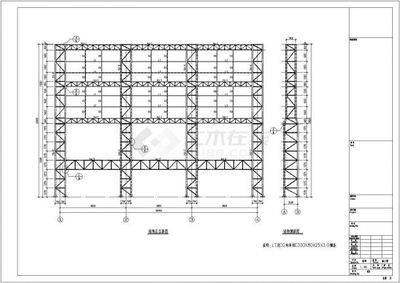
一、桁架结构的基本概念
桁架结构是由若干杆件在每杆两端用铰联结而成的结构。当各杆的轴线都在同一平面内,且外力也在这个平面内时,称为平面桁架。
二、桁架结构设计的假定条件
- 在平面桁架的计算简图中,通常有以下假定:
- 各结点都是无摩擦的理想铰。
- 各杆轴线绝对平直,并通过铰的中心。
- 荷载和支座反力作用在结点上。
三、桁架结构的内力计算
- 计算方法
- 结点法:这是计算桁架内力的基本方法之一。在用结点法进行计算时,注意一些技巧可使计算过程得到简化,例如相似三角形的应用。在计算中,经常需要把斜杆的内力S分解为水平分力X和竖向分力Y。设斜杆的长度为L,其水平和竖向投影的长度分别为Lx和Ly,则由比例关系可知相关计算关系。
- 截面法:也是计算桁架内力的基本方法。截面法取出的隔离体,不管其上有几个轴力,如果某杆的轴力可以通过列一个平衡方程求得,则此杆称为截面单杆,可能的截面单杆通常有相交型和平行型两种形式。
- 联合法:可结合结点法和截面法来计算桁架内力。
- 内力计算要点
- 对于桁架内力计算,可假定节点为铰接,将荷载集中于各个节点上,按节点荷载求得各杆件的轴向力。节间荷载对上弦杆所引起的弯矩,在选择杆件截面时再行考虑。
- 对于不同类型的桁架在特殊荷载作用下,内力情况有所不同。例如三角形桁架在半跨活荷载(包括悬挂吊车)作用下,中间一对斜腹杆的内力不同;梯形桁架在半跨活荷载作用下,中间腹杆内力可能变号;多边形桁架或弧形桁架可能在3/4跨及1/4跨(或2/3跨及1/3跨)活荷载的组合下,某些腹杆的内力达到其最大值。
四、桁架结构设计中的其他考虑因素
- 结构类型相关
- 根据组成桁架杆件的轴线和所受外力的分布情况,桁架可分为平面桁架和空间桁架。平面桁架可视为在一个基本的三角形框上添加杆件构成的。屋架或桥梁等空间结构是由一系列互相平行的平面桁架所组成。空间桁架的节点为光滑球铰结点,杆件轴线都通过联结点的球铰中心并可绕球铰中心的任意轴线转动,空间桁架和平面桁架一样,可用部分截割法和节点法求出桁架内所有杆件所受的内力。
- 桁架自重
- 桁架自重一般可按经验公式估算(式中gz一一桁架自重的标准值,按屋面水平投影面积计算(kN/m2);l一一桁架跨度(m))。由于桁架自重在全部荷载中所占的比率很小,故当设计完毕后桁架的实际自重与按上式所估算的自重略有出入时,一般不必进行重算。为了简化计算,当仅有上弦荷载时,可认为桁架的自重完全作用在上弦节点处;当上、下弦均有荷载时,则认为自重按上、下弦各半分配。
- 荷载组合
- 荷载组合应遵照现行《结构荷载规范》相关规定。当仅有恒荷载或恒荷载产生的内力超过全部荷载所产生的内力的80%时,应遵照表3.4.4注1规定。求桁架杆件内力时,恒荷载(包括自重)按全跨分布。活荷载除按全跨分布外,尚应根据各种桁架的受力特点,分别按可能出现的不利分布情况进行组合。屋面活荷载与雪荷载一般不会同时出现,故取二者之较大者与恒荷载进行组合。小于30的桁架设计中,对封闭房屋只有当设有天窗时,才需考虑风荷载的不利组合。
- 预起拱度
- 在木结构桁架设计中,为了消除桁架可见的挠度,不论木桁架或钢木桁架,皆应在制造时预先向上起拱。起拱度通常取为桁架跨度的1/200。起拱时应保持桁架的高跨比不变,木桁架常在下弦接头处提高,而钢木桁架则常在下弦节点处提高。
- 节间划分
- 在木结构桁架设计中,桁架节间的划分原则是:根据荷载、跨度及所用木材强度设计值的大小进行节间划分,在常用木材规格范围内,充分利用上弦的承载能力。因为在木桁架的总挠度中,大部分是由节点及接头处非弹性变形(制造不紧密、干缩变形及横纹承压变形等)的累积造成的,若将节间划分过小,势必因节点增多而加大桁架的挠度,并使桁架的制造工作量加重。对于无下弦荷载的钢木桁架,应尽量扩大下弦的节间长度,减少下弦节点数,这样,不但可以减小挠度,而且方便施工,节约钢材。划分节间时,还应注意不使斜杆与弦杆的夹角过小,以利构件的工作和制造。
- 压杆计算长度
- 在结构平面内,弦杆及腹杆取节点中心间的距离。在结构平面外,上弦取锚固檩条间的距离;腹杆取节点中心间的距离。
- 上弦计算原则
- 当檩条布置在节点处时,除按轴心受压杆件计算外,尚应验算在桁架支座偏心达到施工偏差限值时,此种偏心对上弦的不利影响。当节点之间布置有檩条时,上弦因节间荷载而承受弯矩,应按压弯构件计算。根据木桁架和钢木桁架的破坏试验测定,连续上弦的跨间弯矩值接近于按简支计算的弯矩,而在节点处存在较小的负弯矩,这是由于在桁架承受荷载后,作为连续上弦中间支座的节点随桁架的变形而产生相应的竖向位移,使其按连续梁作用产生的正弯矩和由于支座位移产生的负弯矩互相抵消之故。




桁架结构设计的常见误区
桁架结构与框架结构比较
桁架结构设计软件推荐
桁架结构在现代建筑中的应用

还没有评论,来说两句吧...