桁架结构设计规范标准最新
温馨提示:这篇文章已超过481天没有更新,请注意相关的内容是否还可用!
桁架结构设计规范标准的最新进展涉及**材料选择、设计计算、安全措施、环境保护和维护保养等**多个方面。以下是对这些方面的详细分析:,,1. **材料选择**:, - 钢构桁架的主体材料应选择具有足够强度和韧性的钢材,符合国家或行业相关标准。, - 焊接材料的选择也需符合相应的国家标准以确保连接的可靠性和结构的完整性。,,2. **设计计算**:, - 桁架的尺寸、材料、连接方式等应根据实际工程需求和环境条件进行精确计算。, - 节点连接的设计要求更加严格,需要节点连接紧固可靠、刚性好,并考虑结构的变形和承载能力。,,3. **安全措施**:, - 施工过程中应设置明显的安全警示标志,确保非施工人员远离施工区域。, - 施工人员应配备必要的安全防护装备,如安全帽、安全带等。,,4. **环境保护**:, - 施工过程中应采取措施减少对环境的影响,如控制噪音、防尘等。,,5. **维护保养**:, - 搭设完成后,应定期进行检查和维护,确保其长期稳定运行。, - 使用合适的起重设备,并确保操作人员的安全。,,6. **连接与固定**:, - 连接与固定是桁架结构设计中的关键部分,需要确保连接的紧固性和结构的稳固性。,,最新的桁架结构设计规范标准强调了对新材料和新工艺的应用,以及在安全性能和抗震能力上的加强。鼓励设计师们在桁架结构的设计中追求创新和突破,以满足当代建筑设计的要求。

桁架结构设计规范标准最新
设计原则
桁架结构的设计应符合力学原理,确保结构的稳定性和承载能力。设计时应考虑材料特性、环境因素、使用功能和经济性。
材料选择
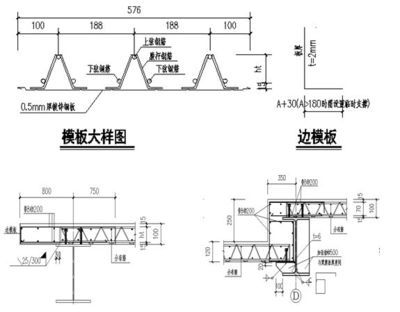
桁架结构主要采用高强度钢材,如Q345、Q390等。材料应符合国家标准,并具有相应的质量证明文件。
结构形式
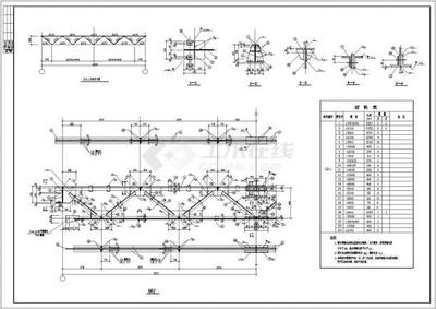
常见的桁架形式包括平面桁架、空间桁架、双层桁架等。结构形式的选择应根据实际工程需求和环境条件确定。
连接方式
桁架的连接方式包括焊接、螺栓连接和铆接。这些连接方式应符合相关的规范标准,以确保连接部位的强度和可靠性。
制造工艺
钢构件的制造应遵循国家和行业标准,确保尺寸精度和表面质量。焊接工艺应符合焊接规范,保证焊缝质量。
安装要求
桁架结构的安装应按照设计图纸和技术规范进行,确保结构的整体稳定性和安全性。安装过程中应注意节点的正确安装和支撑系统的稳定性。
规范标准
以下是与桁架结构设计相关的规范标准:
| 规范名称 | 主要内容 |
|---|---|
| 《空间网格技术规程》 | 包括立体桁架的高度、拱架厚度和失高、地震计算等内容 |
| 《抗规》 | 包括地震计算和阻尼比的规定 |
| 《钢结构设计规范》 | 桁架结构的设计需符合国家相关规范标准 |
| 《建筑结构荷载规范》 | 桁架结构的设计需符合国家相关规范标准 |
以上是根据最新的搜索结果整理的关于桁架结构设计的规范标准。需要注意的是,规范标准可能会随着时间和技术的发展而更新,因此在实际设计中应查阅最新的官方文件以获取最准确的信息。




桁架结构抗震设计要点
桁架结构材料性能对比
空间网格技术规程解读
钢结构设计规范更新时间

还没有评论,来说两句吧...