钢结构楼梯设计(钢结构楼梯荷载计算方法)
钢结构楼梯设计是建筑结构工程中的一项重要内容,其核心在于准确计算楼梯在各种荷载作用下的受力状况。本文主要探讨了钢结构楼梯荷载计算方法。介绍了楼梯的基本组成和功能,以及在建筑中的重要作用。分析了楼梯荷载的来源,包括自重、人流、家具等。详细阐述了荷载计算的方法,包括直接法、简化法和有限元分析法。直接法是最基础的方法,通过计算楼梯各部分的重量来估算总荷载;简化法则基于经验公式进行简化计算;而有限元分析法则利用计算机模拟,更加精确地预测楼梯的受力情况。文章还讨论了如何根据不同的建筑需求选择适当的荷载计算方法,并提出了在实际工程设计中应注意的问题。

钢结构楼梯设计
钢结构楼梯的设计是一个涉及多个方面的复杂过程,需要考虑荷载计算、几何形状与尺寸、连接方式等多个因素。以下是根据提供的搜索结果整理的钢结构楼梯设计的关键点。
设计要点
荷载计算与结构设计
钢结构楼梯的设计首先需要进行荷载计算,包括人员荷载、楼梯自重、楼梯承载的活载等。根据计算结果,确定楼梯的结构形式、材料选择以及截面尺寸等。
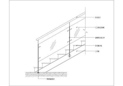
楼梯的几何形状与尺寸
楼梯的几何形状与尺寸直接影响到使用者的舒适度和安全性。设计师需要根据使用场所和功能要求,确定楼梯的坡度、踏步宽度、踏步高度等参数,以确保使用者的舒适度和安全性。
钢结构楼梯的连接方式
钢结构楼梯的连接方式直接关系到楼梯的稳定性和安全性。常见的连接方式包括焊接、螺栓连接和槽钢连接等。设计师需要根据具体情况选择合适的连接方式,并确保连接的牢固性和稳定性。
施工流程
材料准备与加工
在施工之前,需要准备好所需的钢材和配件,并进行加工。钢材的选择应符合设计要求,并经过质量检验。加工过程中需要注意保持尺寸精度和表面质量。
楼梯的组装与安装
楼梯的组装与安装是施工的关键环节。在组装过程中,需要按照设计要求进行构件的拼装,并进行精确的定位和调整。安装过程中需要注意施工现场的安全措施,确保施工人员的安全。
表面处理与防腐措施
钢结构楼梯在施工完成后需要进行表面处理和防腐措施。表面处理包括除锈等,防腐措施则需要根据环境条件选择合适的涂层和方法。
安全要点
确保施工安全
在施工过程中,需要采取必要的安全措施,确保施工人员的人身安全。这包括但不限于佩戴安全帽、安全带等个人防护装备,以及设置安全网、护栏等安全设施。
遵守设计规范
在设计和施工过程中,需要严格遵守相关的建筑设计规范和标准,确保楼梯的安全性和可靠性。这包括荷载计算、材料选择、连接方式等方面都应符合规范要求。
定期检查与维护
钢结构楼梯在投入使用后,需要定期进行检查和维护,及时发现并修复潜在的安全隐患。这包括检查焊缝、螺栓连接等关键部位的状态,以及重新涂装防腐涂层等。
以上就是钢结构楼梯设计的主要内容,希望对您有所帮助。




钢结构楼梯荷载计算方法
钢结构楼梯坡度设计标准
钢结构楼梯连接方式比较
钢结构楼梯施工安全措施

还没有评论,来说两句吧...