钢结构车间图牿(钢结构车间图纸通常包括建筑设计说明、门窗表、平面图、结构设计)
温馨提示:这篇文章已超过502天没有更新,请注意相关的内容是否还可用!
钢结构车间图是一份详细的设计文件,它包含了建筑设计说明、门窗表、平面图以及结构设计等关键部分。这份图纸旨在为建筑项目提供一个清晰的蓝图,确保工程的顺利进行和施工的准确性。在建筑设计说明中,会详细描述钢结构车间的设计要求,包括尺寸、形状、材料选择等。门窗表则列出了所有需要安装的门窗类型及其规格。平面图展示了车间的整体布局和内部空间的划分,帮助工程师和施工团队理解如何组织和布置工作区域。结构设计部分则会提供关于如何搭建钢结构的具体指导,包括梁、柱、支撑系统等的详细设计。通过这些专业的图纸,建筑师、工程师和施工团队可以确保项目的质量和效率,从而满足客户的需求并达到预期的功能标准。

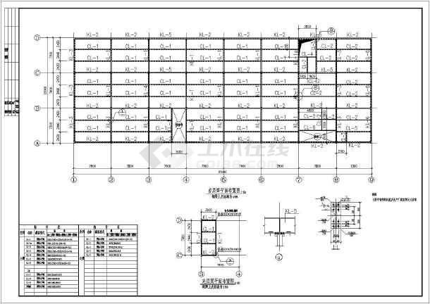
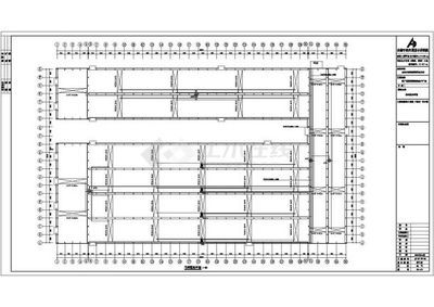
钢结构车间图纸通常包括建筑设计说明、门窗表、平面图、屋面平面图、立面图、剖面图、楼梯间详图、结构设计说明、地脚螺栓定位图、桩布置平面图、基础承台布置图、桩身配筋、承台详图、二层结构布置图、楼梯结构详图、屋面支撑和柱间支撑布置图、GJ详图、屋面檩条布置图、水平支撑、柱间支撑、系杆详图、墙面檩条布置图、檩条、拉条详图、一层给排水平面图、二层给排水平面图、给排水系统图、配电系统图、照明布线图等。




钢结构车间设计要点
钢结构车间施工流程
钢结构车间造价预算
钢结构车间维护保养

还没有评论,来说两句吧...