屋面梁在哪个位置(屋面梁与楼层框架梁的区别,如何检测屋面梁的安全性?)
屋面梁是建筑中的一个重要构件,它连接屋顶和楼层框架,承受着屋顶的重量。与楼层框架梁相比,屋面梁的位置位于屋顶结构层上,而楼层框架梁则位于楼层结构层上。检测屋面梁的安全性对于确保建筑物的稳固和安全至关重要。,,检测屋面梁安全性的方法包括目视检查、材料测试(如钢筋锈蚀程度)、荷载试验(模拟不同负荷下的结构响应)以及使用无损检测技术(如超声波探伤或磁粉检测)。这些方法有助于评估屋面梁的完整性、强度和耐久性,确保其能够承载预期的负载,防止因老化或损伤导致的结构失效。

屋面梁的位置
屋面梁是指砖混结构或框架结构的顶层屋面的梁,它位于整个结构的最上方,主要作用是承受屋架的自重和屋面活荷载。以下是关于屋面梁位置的详细解释:
屋面梁的具体位置
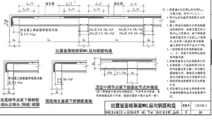
屋面梁位于建筑物的最顶层,也就是结构的最高点。它支撑着屋顶的重量,并将这些荷载传递到柱子和其他支撑结构上。在框架结构中,屋面框架梁(WKL)是位于整个结构顶面的框架梁,其节点构造通常为γ形,与一般框架梁有所不同。
屋面梁的作用
屋面梁的主要作用是承受屋面的恒荷载和活荷载。恒荷载一般指构件自重,而活荷载则包括雪荷载、积灰荷载等。此外,屋面梁还需要满足较高的锚固要求,以确保结构的安全性。
屋面梁与其他梁的区别
屋面梁与楼层框架梁(LL)的主要区别在于它们所处的位置和功能。楼层框架梁位于顶层以下的各标准层,而屋面框架梁则位于顶层。尽管两者在某些情况下可能具有相似的构造,但屋面框架梁的节点构造通常更为特殊,以适应其在结构顶面的位置。
结论
综上所述,屋面梁位于建筑物的最顶层,是支撑屋顶重量的关键构件。它不仅承受屋顶的恒荷载和活荷载,还将这些荷载传递到下层的支撑结构中。在设计和施工过程中,必须特别注意屋面梁的锚固要求和节点构造,以确保建筑物的整体稳定性和安全性。




屋面梁的设计要点有哪些?
屋面梁与楼层梁的区别
如何检测屋面梁的安全性?
屋面梁的常见问题及解决方法

还没有评论,来说两句吧...