钢结构平台施工工艺(钢结构平台施工安全措施钢结构平台施工成本预算预算)
温馨提示:这篇文章已超过436天没有更新,请注意相关的内容是否还可用!
摘要:本文主要探讨了钢结构平台施工工艺及其安全措施和成本预算。详细阐述了钢结构平台的施工工艺流程,包括基础施工、主体结构搭建、屋面及平台安装等关键步骤。随后,文章强调了在施工过程中必须采取的安全措施,如严格的作业规程、定期的安全培训以及必要的安全设备配置等,以确保工人的安全和施工的顺利进行。文章对钢结构平台的成本预算进行了分析,包括材料成本、人工成本、管理成本等,并提出了有效的成本控制策略。通过这些措施和方法,可以有效提升钢结构平台施工的效率和安全性,降低工程成本,提高项目的整体质量。

钢结构平台施工工艺
一、施工前准备
- 现场清理与分割
- 对施工现场进行清理,根据平台的安装位置和尺寸,准确地将整个施工区域进行分割,并预留安装孔的位置。
- 配件检查
- 检查安装平台所需的配件,像支架、梁、柱、地锚及铺设垫板等,确保配件齐全。
- 对钢结构框架所用材料进行检验,要求所有钢材具有质量证明书且符合设计要求。当对钢材质量有疑义时,按国家现行有关标准抽样检验。钢材表面质量除符合国家现行有关标准规定外,还需满足特定规定,如钢材表面有锈蚀、麻点或划痕等缺陷时,其深度不得大于该钢材厚度负偏差的1/2;钢材表面锈蚀等级应符合现行国家标准《涂装前钢材表面锈蚀等级和除锈等级》规定的A、B、C级,如锈蚀达到D级,则不得用作结构材料。钢结构采用的连接和涂装材料也要有出厂质量证明书并符合设计要求,不合格材料坚持退货处理,不能投入使用。
- 材料应分类堆放整齐并作明显标记,同时坚持领料制度,防止班组用错材料。
二、基础施工
- 基础类型选择与处理
- 根据勘察报告和设计要求,选择合适的基础类型,如需要可进行换填、夯实、打桩等地基处理操作。
- 基础验收
- 基础施工完成后,按照设计要求和国家相关规范标准(如《建筑地基基础工程施工质量验收规范》等)进行验收。采用观察、量测、试验等方法,观察基础表面是否平整、无裂缝、无蜂窝麻面等缺陷;量测基础尺寸和位置是否符合设计要求;进行必要的试验,如混凝土强度试验、钢筋焊接试验等,确保基础施工质量。
三、主体结构施工
- 钢材矫正与下料
- 对钢材进行矫正,消除弯曲、扭曲等变形,确保构件几何尺寸和形状符合设计要求。根据构件的几何尺寸和形状,采用机械或火焰切割等方式进行下料。
- 构件制作
- 将切割好的钢板或型钢进行组对,采用合适的焊接工艺进行焊接,形成构件。一般钢结构制作工艺流程为:放样→下料→拼板→切割→组立→埋弧焊接→钻孔→组装→矫正成型→铆工零配件下料→制作组装→焊接和焊接检验→防锈处理、涂装、编号→构件验收出厂。在制作过程中应根据工艺流程,抓住关键工序进行质量控制,如控制关键零件的加工,主要构件的工艺、措施,所采用的加工设备、工艺装备等。
- 构件运输与吊装
- 把预制好的构件运输到现场,采用合适的吊装设备和工艺进行吊装。
- 现场焊接与连接
- 对吊装到位的构件进行现场焊接和连接,确保其稳定性和整体性。在钢结构制作和安装工程中,焊接工程是重要环节,要重视焊接工程质量控制。
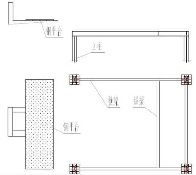
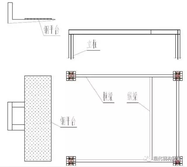
- 安装平台支撑
- 先进行大型主体结构(如梁和柱等)的安装,再根据平台设计方案安装平台支撑位置。将支撑架安装好后,用螺栓把支架与支撑架紧固在一起,保证安装牢固。安装过程中要特别注意支撑的位置和方向,保证其垂直度和水平度的一致性。
- 安装平台主体
- 根据设计方案进行板材的锁定,然后将地锚固定在基座上,保证平台的安全性和牢固性。同时要注意板材的放置位置和方向。
四、平台板面施工
- 材料选择与铺装
- 根据平台使用环境和承载要求,选择适合的钢材型号和规格(如Q235B、Q345B等)。平台板面一般采用焊接或螺栓连接的方式进行铺装,确保连接牢固、平整度高。
- 防水与防滑处理
- 对于需要防滑处理的平台板面,可以采用喷涂防滑涂料、镶嵌防滑条等方式提高板面摩擦系数,确保人员行走安全。
- 防腐与防火涂层施工
- 在钢材表面涂刷防腐涂料(如环氧富锌底漆、氯化橡胶面漆等),隔绝空气和水分,延长钢材使用寿命;涂刷防火涂料,提高钢材的耐火极限,减少火灾对钢结构的破坏。
五、防护设施安装
- 安装防护栏杆
- 平台施工完成后,安装防护栏杆。对于钢结构平台(尺寸较大、高度和强度要求高),一般采用钻孔的方式进行固定。
六、质量检查与验收
- 检查内容
- 检查钢材的材质证明、规格尺寸、表面质量等是否符合设计要求和国家规范;对焊缝进行外观检查和无损检测,确保焊接质量符合规定标准;检查螺栓、螺母等紧固件是否拧紧;检查涂层的厚度、附着力、颜色等是否符合要求。
- 验收文件资料整理
- 整理施工过程中的各项质量检查记录(包括自检、专检和交接检等),收集钢材、焊条、焊丝等材料的材质证明文件,整理焊缝无损检测报告等,确保材料质量可追溯且焊接质量符合要求。
- 后期维护检查
- 定期对钢结构平台进行检查,发现问题及时处理;定期进行防腐处理以延长使用寿命;严禁在钢结构平台上超载堆放物品或进行其他违规操作;建立钢结构平台的使用和维护档案,记录使用情况和维护保养历史。




钢结构平台施工中常见问题
钢结构平台施工质量控制要点
钢结构平台施工安全措施
钢结构平台施工成本预算

还没有评论,来说两句吧...