钢结构车间图纸设计说明(钢结构车间设计规范解读)
温馨提示:这篇文章已超过435天没有更新,请注意相关的内容是否还可用!
钢结构车间图纸设计是确保建筑结构安全、稳定和符合使用要求的重要过程。以下是对钢结构车间设计规范的解读,以供参考:,,1. 结构布局:钢结构车间的设计应合理规划空间布局,包括生产车间、仓库、办公区等区域。布局应考虑到生产流程的合理性,以及人员流动的便捷性。,,2. 材料选择:根据车间的使用功能和环境条件,选择合适的钢材类型。常见的钢材有H型钢、工字钢、角钢等,应根据承重需求和成本效益进行选择。,,3. 连接方式:钢结构车间的连接方式主要有螺栓连接、焊接连接和铆接等。根据实际工况,选择合适的连接方式,确保结构的稳定性和安全性。,,4. 防腐处理:钢结构车间的钢材表面应进行防腐处理,以防止锈蚀和延长使用寿命。常用的防腐处理方法有热镀锌、电镀锌、喷涂防锈漆等。,,5. 防火性能:钢结构车间应具备良好的防火性能,以确保在火灾发生时能够有效控制火势蔓延。可以通过设置防火墙、防火涂料等方式实现。,,6. 抗震设计:钢结构车间在地震作用下容易产生变形,因此需要进行抗震设计,以提高其抗地震能力。抗震设计包括选择合适的结构形式、设置减震装置等。,,7. 施工质量:钢结构车间的施工质量直接影响到后期使用效果。施工过程中应严格按照设计图纸和技术规范进行,确保各部件安装准确、牢固。,,钢结构车间图纸设计需要综合考虑多种因素,确保结构的安全性、稳定性和经济效益。

钢结构车间图纸设计说明相关内容
一、基本内容
- 设计依据与标准:钢结构车间设计需遵循相关规范,如按钢结构设计规范(GB50017 - 2003)和门式刚架轻型房屋钢结构技术规程(CECS102:2002)进行设计等。设计依据的规范是确保车间结构安全、稳定的基础,设计图纸要体现出符合这些标准的要求,例如构件的设计、连接方式等要在规范允许的范围内进行确定和标注。这有助于施工方准确理解设计意图,按照要求进行施工建设。
- 工程概况:
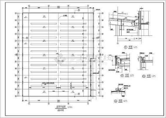
- 建筑面积与规模:包括如某钢结构车间建筑面积为1885平米,层数可能为五层,高度35米等信息。这些信息明确了车间的整体大小和空间布局的基本框架,在图纸设计说明中可能会通过平面图、剖面图等多种视图形式准确体现各层之间的关系、不同功能区域的划分等。
- 建筑等级与使用年限:如建筑等级为三级,使用年限为50年等。这些信息影响着材料的选择、结构设计的安全系数等方面。例如,较高的建筑等级和较长的使用年限要求可能促使设计时选用更高质量的钢材和更可靠的连接构造。
- 设计功能:像车库、厂房、办公室等多种功能区域的设置。在图纸中会通过不同的区域划分和标识,如不同颜色、线条或符号等来表示不同功能区对应的结构部分,在设计说明中也会阐述各功能区在结构承载、空间布局等方面的特殊要求和设计考虑。
二、材料相关
- 钢材要求:
- 钢材种类与性能:承重结构钢材应具有抗拉强度、伸长率、屈服强度和硫、磷含量的合格保证,并应具有冷弯试验的合格保证。如Q235钢和Q345钢的化学成分和力学性能应分别符合《碳素结构钢》(GB700 - 88)和(GB/T1591 - 94)的相关要求。在图纸设计说明中会明确指定钢材的种类和性能要求,施工方根据这些要求采购合适的钢材。
- 焊接材料要求:焊接材料选用时要按强度、性能及母材相匹配选用。当两种不同钢号焊接时,宜采用与强度较低者相匹配的焊接材料。这有助于确保焊接连接的强度和稳定性,在图纸上可能会标注出焊接部位的特殊要求或者在设计说明中单独强调焊接工艺与焊接材料的适配性。
三、结构构件相关
- 构件设计:
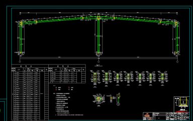
- 钢柱、钢梁与支撑构件:在平面图、立面图、剖面图等图纸中详细显示钢柱、钢梁、支撑等构件的位置、尺寸以及各层之间的相对关系等。例如在平面图中明确钢柱的分布位置,在立面图中展示各层钢梁的高度和跨度等信息。设计说明会对这些构件的设计原理、承载能力计算依据等进行阐述,方便施工人员理解设计背后的力学逻辑。
- 节点构造:节点详图会显示钢结构的节点构造,如钢柱与钢梁的连接节点、支撑与钢柱的连接节点等。设计说明会对节点的连接方式(如采用焊接、螺栓连接或其他方式)、连接强度要求、节点处的构造细节(如加劲肋的设置等)进行详细描述,以确保节点在结构受力体系中的可靠性。
四、其他方面
- 防腐处理:车间钢结构施工完成后需要进行防腐处理以延长结构的使用寿命,防腐处理主要包括涂层防腐和热浸镀锌两种方式。在进行防腐处理前,需要对钢结构进行清洁和除锈工作,以保证涂层或镀锌层的附着力。在设计说明中可能会给出防腐处理的具体要求,如防腐涂料的种类、涂刷厚度、除锈等级等。
- 电气设计(如果包含):如果钢结构车间涉及电气部分,如照明系统、防雷接地系统等,设计说明会阐述电气系统的设计范围、设计参数等内容。例如某钢结构车间强电施工,设计范围包括照明系统、防雷接地系统,在设计说明中会详细说明照明灯具的布局原则、防雷接地的具体措施等。




钢结构车间设计规范解读
钢结构车间材料选择指南
钢结构车间节点构造详解
钢结构车间防腐处理流程

还没有评论,来说两句吧...