钢结构课设厂房跨度24米
温馨提示:这篇文章已超过442天没有更新,请注意相关的内容是否还可用!
摘要:本文介绍了一个钢结构课设项目,该项目设计了一个跨度为24米的厂房。该厂房采用了现代钢结构技术,以实现高效、经济和环保的建设目标。在设计过程中,充分考虑了厂房的功能性需求,如生产、仓储和物流等,以确保其能够满足各种生产和运营活动的需求。文章还对厂房的结构稳定性进行了分析和计算,确保其能够承受各种荷载和环境因素的影响。文章还对厂房的施工过程进行了详细的描述,包括材料选择、施工工艺和技术要求等。文章总结了整个项目的设计思路和经验教训,为类似项目的设计和实施提供了有益的参考和借鉴。
一、设计资料方面
(一)结构形式
一般这种24米跨度的厂房采用梯形钢屋架,预应力混凝土大型屋面板,屋架铰支于钢筋混凝土柱上,柱距常为6米,上柱截面例如400×400,混凝土强度等级可为C20,屋面坡度如i = 1:10等。
(二)荷载标准值
1. 永久荷载
- 屋面材料:像二毡三油防水层0.4KN/m2、保温层1.0KN/m2、水泥砂浆找平层等,还有屋架及支撑自重(按经验公式计算,如q = 0.12+0.011L,L为跨度,这里计算可得0.384KN/m2)、1.4KN/m2的预应力混凝土大型屋面板等。
- 悬挂管道:可能存在0.1KN/m2的悬挂管道荷载等。
2. 可变荷载
- 屋面活荷载标准值:0.5KN/m2。
- 雪荷载标准值:可能为0.7KN/m2。
- 积灰荷载标准值:0.3KN/m2等。
(三)屋架的计算跨度等尺寸
屋架的计算跨度Lo = 24000 - 2×150 = 23700mm,端部高度例如h = 2005mm(轴线处),h = 2990mm(计算跨度处),起拱高度可能为50mm等。
二、结构形式与布置
(一)屋架支撑布置
需要根据厂房的具体使用功能、受力情况等进行合理布置,例如要考虑如何增强屋架的稳定性,抵抗水平力等。虽然没有给出具体布置图,但可以参考类似厂房的屋架支撑布置原则,如在厂房的两端、跨中以及有较大荷载集中处设置支撑等。
三、材料选用
(一)钢材
多选用Q235B钢或者Q345钢,如Q235B钢性能上强度、韧性等能满足一般厂房结构需求,Q345钢强度更高些,适用于对结构强度要求更高的情况。
(二)焊条
若钢材为Q235B钢,焊条可采用E43型;若为Q345钢,焊条采用E50型等。
四、设计流程要点
(一)内力计算
根据结构形式和荷载情况计算屋架杆件的内力,这是后续杆件设计的基础。例如采用结构力学的方法计算在永久荷载、可变荷载组合作用下各杆件的轴力等。
(二)杆件设计
- 截面选择:根据内力计算结果、杆件的受力性质(如轴心受压、轴心受拉等)选择合适的杆件截面形状和尺寸,如可以选择角钢等型材。
- 强度、稳定验算:对所选截面进行强度和稳定性验算,确保杆件在设计荷载下不会发生破坏或失稳现象。
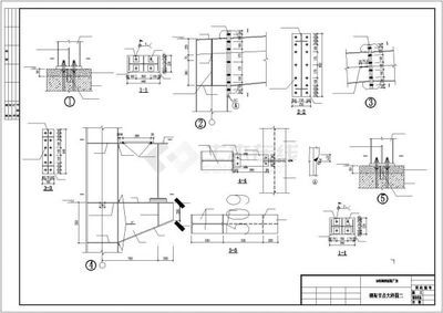
(三)节点设计
- 连接方式:确定屋架杆件之间的连接方式,如焊接或者螺栓连接,不同连接方式有不同的受力特点和施工要求。
- 节点板设计:节点板用于连接各杆件,需要根据杆件内力传递要求确定节点板的形状、尺寸和厚度等。

钢结构厂房设计软件推荐
24米跨度厂房经济性比较
厂房钢结构材料成本分析
钢结构厂房施工注意事项





还没有评论,来说两句吧...