砌体加固方式
温馨提示:这篇文章已超过516天没有更新,请注意相关的内容是否还可用!
砌体结构加固是提高其安全性和耐久性的重要手段。常用的加固方法包括:,,1. 钢筋混凝土加固:通过在砌体结构中加入钢筋,形成钢筋混凝土复合结构,以增强结构的强度和稳定性。,,2. 外包钢加固:将钢板包裹在砌体外围,利用钢板的抗拉性能来提高结构的承载能力。,,3. 灌浆加固:在砌体结构中注入高强度的化学灌浆材料,通过填充空隙来提高结构的密实度和整体性。,,4. 预应力加固:通过施加预应力来改变材料的应力状态,从而提高结构的承载能力和刚度。,,5. 增设支撑系统:在砌体结构上增设支撑或梁柱等构件,以提高结构的承载力和稳定性。,,6. 地基加固:对地基进行加固处理,以提高整个结构的承载能力。,,7. 使用新型材料:如碳纤维、玻璃纤维等高性能纤维材料,用于增强砌体的抗拉强度和抗剪性能。
砌体结构加固方式
一、直接加固法
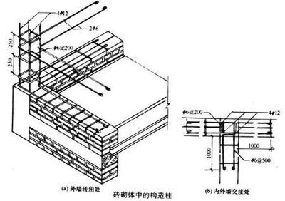
(一)钢筋混凝土外加层加固法
- 优点:施工工艺简单,适应性强,砌体加固后承载力有较大提高,并具有成熟的设计和施工经验,适用于柱带壁墙的加固。
- 缺点:现场施工的湿作业时间长,对生产和生活有一定的影响,且加固后的建筑物净空有一定的减小。
(二)钢筋水泥砂浆外加层加固法
- 优点:与钢筋混凝土外加层加固法相近。
- 缺点:提高承载力不如钢筋混凝土外加层加固法;适用于砌体墙的加固,有时也用于钢筋混凝土外加层加固带壁柱墙时两侧穿墙箍筋的封闭。
(三)外包角钢镶边加固法
- 这种加固方法可以增强砌体结构的局部承载能力和稳定性。例如在砌体柱的四角外包角钢,通过角钢与砌体之间的粘结力和摩擦力等共同作用,提高柱的抗压、抗弯等能力。适用于局部需要加强承载能力的砌体构件。
(四)拆砌式增设
- 对于强度过低的原墙体可拆除重砌,或增设抗震墙。这可以有效改善墙体的强度和整体性能。例如在一些老旧砌体建筑中,墙体由于年久失修强度严重下降,采用拆砌式增设的方法可以重新构建墙体结构,提高抗震等性能。
(五)修补和灌浆
- 压力灌浆修补:对已开裂墙体可采用压力灌浆修补。通过压力将灌浆材料注入墙体裂缝中,填充裂缝,增强墙体的整体性。
- 满墙灌浆加固:对砂浆饱满度差或强度等级过低的墙体可用满墙灌浆加固。灌浆材料可以改善砌体之间的粘结力,提高墙体的强度。
二、间接加固法
(一)预应力撑杆加固法
- 优点:能较大幅度地提高砌体柱的承载能力且加固效果可靠,适用于加固处理高应力、高应变状态的砌体结构的加固。
- 缺点:不能用于温度在600以上的环境中。
(二)增设支撑和附加构件法
- 通过增加支撑和附加构件,改变砌体结构的传力途径,提高结构的承载能力。例如在墙体之间增设钢拉杆、锚杆或外加壁柱和外加圈梁等,增强墙体之间的连接和整体稳定性。当纵、横墙连接较差时,可用钢拉杆、锚杆或外加壁柱和外加圈梁的方法;当圈梁设置偏少不符合抗震要求时应再增设圈梁(外墙圈梁一般用现浇钢筋混凝土,内墙圈梁可用钢拉杆或在进深梁端加锚杆);楼面、屋盖梁支承长度不足时,可增设托梁或采用其他有效措施。
(三)预应力加固法
- 利用预应力钢拉杆或钢绞线对砌体结构进行加固,改善结构的受力状态,提高承载能力。通过施加预应力,可以使砌体结构在承受荷载前就处于一种有利的受力状态,提高结构的抗裂性能和承载能力等。
三、组合加固法
(一)混合外层加固法
- 将钢筋混凝土和钢筋网水泥砂浆结合使用,形成复合保护层,提高砌体结构的耐久性和抗震性能。这种方法结合了钢筋混凝土和钢筋网水泥砂浆各自的优点,可以更全面地提高砌体结构的性能。
(二)其他组合加固
- 结合直接加固法和间接加固法的优点,采用多种加固方法共同作用,提高砌体结构的整体性能。例如在一些复杂的砌体结构加固工程中,可能同时采用外包角钢镶边加固法和预应力加固法等多种方法,从不同方面提高结构的强度、稳定性和抗震性能等。
砌体加固法对比分析
砌体加固施工注意事项
砌体加固后的维护保养
老旧砌体建筑加固案例





还没有评论,来说两句吧...