钢结构现浇混凝土楼板
温馨提示:这篇文章已超过372天没有更新,请注意相关的内容是否还可用!
钢结构现浇混凝土楼板是一种建筑技术,它结合了现代建筑技术和传统建筑材料的优点。这种楼板通常由钢筋混凝土构成,具有高强度、耐久性和良好的抗震性能。在设计和施工过程中,工程师会考虑到建筑物的负载要求、使用环境以及美观等因素。,,钢结构现浇混凝土楼板的施工过程包括以下几个步骤:进行地基处理和基础建设;安装钢梁和支撑结构;浇筑混凝土楼板;进行养护和检查以确保其质量符合标准。整个施工过程需要高度的技术熟练度和精确的计算,以确保建筑物的稳定性和安全性。,,钢结构现浇混凝土楼板的优点在于其自重轻、抗震性能好、施工速度快、维护成本低等优点。这种楼板也存在一些缺点,如成本较高、施工难度较大等。在选择使用钢结构现浇混凝土楼板时,需要综合考虑各种因素,以满足建筑物的需求和目标。
一、钢结构现浇混凝土楼板概述
钢结构现浇混凝土楼板是一种结合了钢结构和混凝土结构优点的楼板形式。在这种结构中,钢结构作为框架提供整体的支撑和结构稳定性,而现浇混凝土楼板则作为楼面结构,承受楼面的荷载并将其传递给钢结构框架。
二、施工相关
(一)施工工艺
- 准备工作
- 首先要进行结构的检查,例如支座的定位线弹好以后,在结构处拉垂直钢线以及横向线作为安装控制线。同时要检查结构的标高及埋件尺寸,并将检查尺寸记录下来,反馈给监理、业主等相关方。
- 模板工程
- 依照设计位置进行支模,这是现浇混凝土楼板施工的重要环节。模板的质量和安装精度会影响到楼板的形状、尺寸和表面平整度等。
- 钢筋工程
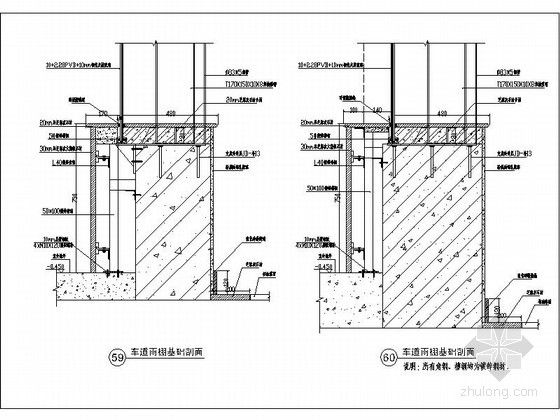
- 进行钢筋的制作和绑扎。在钢结构现浇混凝土楼板中,要考虑钢筋与钢结构的连接等问题。例如在钢梁上可能需要设置栓钉,以增强钢梁与混凝土的协同工作能力。同时,对于预制板可能还需要设置预埋件,与钢梁进行焊接等操作。
- 混凝土浇筑
- 混凝土可采用商混(商品混凝土),如C25混凝土等。浇筑时要注意浇筑的速度、高度等参数,例如在早上8点左右开始浇筑,11点浇筑完成这样的操作过程。浇筑完成后要进行找平复膜养护,混凝土的保湿养护对其强度增长和各类性能的提高十分重要,特别是早期的妥善养护可以避免表面脱水并大量减少砼初期伸缩裂缝发生。
- 养护与拆模
- 正常保养情况下,每天养护不得少于2次。砼强度≥1.2MPa时楼面方可上人及施工(一般在浇灌后24小时强度可达≥1.2MPa,春、夏、秋正常养护下7 - 9天;冬天在正常养护下10 - 15天能够拆模),跨度在8米以上的混凝土强度为≥100%,8米及8米以下≥75%方可拆模。在实际施工中,如果浇水养护影响弹线及施工人员作业,可以采用覆盖麻袋或草包进行一周左右的妥善保湿养护。
(二)施工中的注意事项
- 结构协同工作
- 要确保钢结构与混凝土结构之间的有效协同工作。例如在强震区或重要建筑中,柱周边宜设置钢筋和箍筋,以免楼板在水平力下被柱子压坏;钢梁宜形成组合梁,梁上设置栓钉等措施,都是为了提高结构的整体性和协同工作能力。
- 裂缝控制
- 混凝土楼板可能会出现裂缝问题。从施工工艺方面对现浇混凝土楼板裂缝的成因及施工控制措施需要深入探讨。例如要合理控制混凝土的配合比、浇筑速度、振捣方式等,以减少裂缝的产生。
三、结构性能特点
(一)优点
- 结构性能
- 结合了钢结构和混凝土结构的优点,钢结构具有强度高、自重轻、施工速度快等特点,混凝土楼板则具有较好的抗压性能、防火性能和耐久性等。二者结合可以提高建筑物的整体结构性能。
- 空间性能
- 可以根据建筑设计的要求灵活布置空间,适用于各种不同功能和造型要求的建筑。
- 承载能力
- 具有较大的承载能力,能够满足建筑物在使用过程中的各种荷载要求,包括竖向荷载和水平荷载等。
(二)可能存在的问题
- 连接节点处理
- 钢结构与混凝土结构的连接节点处理较为复杂,如果处理不当可能会影响结构的整体性和安全性。例如栓钉的焊接质量、预埋件的设置精度等都会对连接效果产生影响。
- 施工难度
- 相对于单一的钢结构或混凝土结构施工,钢结构现浇混凝土楼板的施工难度较大,需要施工人员具备钢结构和混凝土结构两方面的施工技术知识和经验。
钢结构现浇混凝土楼板




还没有评论,来说两句吧...