梯形钢屋架设计施工图(梯形钢屋架的设计施工图)
温馨提示:这篇文章已超过371天没有更新,请注意相关的内容是否还可用!
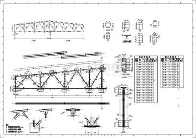
梯形钢屋架设计施工图是建筑结构设计的重要组成部分,它详细描述了梯形钢屋架的尺寸、形状和连接方式,以及如何在实际施工中安装和维护。以下是根据您提供的内容生成的摘要:,,梯形钢屋架设计施工图主要包括以下几个方面:,,1. 梯形钢屋架的结构设计:包括梯形钢屋架的基本参数,如跨度、高度、宽度等,以及梯形钢屋架的形状和尺寸。,,2. 梯形钢屋架的连接设计:描述梯形钢屋架各部分之间的连接方式,如焊接、螺栓连接等,以及连接件的规格和数量。,,3. 梯形钢屋架的支撑设计:包括屋架的纵向支撑和横向支撑,以及支撑系统的设计计算。,,4. 梯形钢屋架的施工方法:详细说明梯形钢屋架在施工现场的安装顺序和方法,以及施工过程中的安全措施。,,5. 梯形钢屋架的维护和检查:介绍梯形钢屋架在使用过程中的维护保养方法,以及定期检查的内容和周期。,,梯形钢屋架设计施工图是确保梯形钢屋架安全、稳定、可靠运行的重要依据,对于提高建筑物的整体质量和使用寿命具有重要意义。
梯形钢屋架设计施工图概述
梯形钢屋架是一种常见的钢结构形式,广泛应用于工业和民用建筑中。它通常由上弦杆、下弦杆、腹杆等组成,通过节点连接形成稳定的结构体系。梯形钢屋架的设计需要考虑荷载、材料、连接方式等因素,以确保结构的安全性和经济性。
设计要点
在设计梯形钢屋架时,需要关注以下几个关键点:
- 荷载计算:包括屋面活荷载、雪荷载、风荷载等,以及吊车荷载等特殊荷载。
- 材料选择:常用的钢材有Q235、Q345等,焊条则有E43、E50等型号。
- 节点设计:节点是梯形钢屋架的关键部位,需要进行详细的计算和设计,包括焊缝尺寸、螺栓规格等。
- 稳定性分析:梯形钢屋架的稳定性是设计中的重要考虑因素,需要通过计算来确保结构的整体稳定性。
施工图内容
梯形钢屋架的施工图应包括以下主要内容:
- 构件详图:展示各个杆件的尺寸、形状和连接方式。
- 几何尺寸图:提供屋架的整体尺寸和各部分的详细尺寸。
- 内力图:显示各杆件在荷载作用下的内力分布。
- 材料表:列出所用材料的规格和数量。
- 焊接和螺栓连接详图:详细说明各连接部位的焊接和螺栓连接要求。
设计实例
以下是几个梯形钢屋架设计施工图的例子:
| 屋架跨度 | 总长 | 柱距 | 屋面坡度 | 主要荷载 |
|---|---|---|---|---|
| 18米 | 18000 | - | - | - |
| 24米 | 24000 | 6m | - | - |
| 27米 | 72m | 6m | i=1/10 | 屋面活荷载0.7kN/m2,雪荷载0.5kN/m2,风荷载0.45kN/m2 |
| 30米 | 96m | 6m | 1:16 | 基本风压0.20kN/m2,基本雪压0.4kN/m2 |
以上数据来源于网络资源,具体的荷载和尺寸可能会根据不同项目和地区有所不同。
结论
梯形钢屋架的设计施工图是钢结构设计的重要组成部分,需要综合考虑荷载、材料、节点设计和稳定性等多个方面。通过合理的计算和详细的设计,可以确保梯形钢屋架的安全性和经济性。在实际工程中,应根据具体情况和最新的设计规范来进行设计。
梯形钢屋架设计施工图



还没有评论,来说两句吧...