钢板加固梁施工方案视频
温馨提示:这篇文章已超过373天没有更新,请注意相关的内容是否还可用!
在视频中,施工团队展示了钢板加固梁的详细施工过程。他们使用起重机将钢板吊起并准确放置在梁上预定的位置。用专用夹具固定钢板,确保其与梁面紧密贴合。随后,进行焊接作业,采用先进的焊接技术确保焊缝牢固且无缺陷。焊接完成后,对钢板和梁进行必要的检查和测试,确保加固效果符合设计要求。整个施工过程中,团队遵循严格的安全规程,确保施工人员的安全。通过这段视频,观众可以清晰地了解钢板加固梁的施工流程和关键步骤,为相关工程提供参考和借鉴。
钢板加固梁施工方案概述
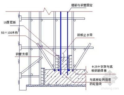
钢板加固梁是一种常见的结构加固方法,它通过在梁的底部或两侧附加钢板,增加梁的承载能力和刚度。这种方法相对简单且成本较低,适用于绝大多数需要加固的梁结构,可以有效延长梁的使用寿命。
施工流程
准备工作:在进行钢板加固梁施工前,需要做好以下准备工作:了解梁的结构和需要加固的位置;确定钢板的材质、尺寸和数量;准备所需的施工设备和工具。
施工步骤:
- 清理梁的表面,确保表面无杂物和附着物;
- 用测量工具精确测量梁的尺寸和位置,确定钢板的安装位置和尺寸;
- 使用焊接设备将钢板固定在梁的底部或两侧,确保焊接牢固;
- 检查钢板的安装质量,确保钢板与梁的紧密结合;
- 完成施工后,对钢板焊接部位进行防腐处理,以防止腐蚀和损坏。
材料选择:在广州地区,常用的钢板材料包括碳钢板、不锈钢板和镀锌钢板。选择适当的材质取决于梁的使用环境、承载荷载和预算限制。
施工注意事项:在进行钢板加固梁施工时,需要注意以下事项:施工过程中需注意安全,佩戴好安全帽、钢靴等个人防护设备;对钢板和焊接材料进行质量检验,确保符合要求;施工现场应保持整洁,减少杂物对施工的干扰;施工过程需要密切配合,并协调好各工种之间的合作。
施工案例
以下是广州某建筑工程项目中钢板加固梁的施工案例:项目名称:XX商业大厦梁加固工程;地点:广州市XX路XX号;施工步骤:1.准备工作:调查梁的结构,确定加固位置和数量;2.材料选择:选择合适的钢板材料和尺寸;3.施工前准备:清理梁的表面,测量尺寸;4.焊接加固:将钢板焊接固定在梁的底部;5.质量检查:检查焊接牢固程度和安装质量;6.防腐处理:对焊接部位进行防腐处理。
结论
虽然我无法直接提供视频教程,但上述信息提供了详细的书面指导,您可以根据这些步骤和注意事项来理解和实施钢板加固梁的施工方案。如果您需要视频教程,建议您在视频分享平台上搜索相关的关键词,可能会找到由专业机构或个人发布的详细施工视频。
钢板加固梁施工安全措施梁加固施工质量检查要点不同环境下钢板选择指南梁加固施工常见问题及解决
钢板加固梁施工方案视频




还没有评论,来说两句吧...