钢结构生产图纸(钢结构生产图纸是用于指导钢结构生产过程的重要文件)
温馨提示:这篇文章已超过520天没有更新,请注意相关的内容是否还可用!
钢结构生产图纸是指导钢结构生产过程中不可或缺的重要文件,它包括了详细的设计参数、结构布局、材料规格以及施工步骤。这些图纸不仅确保了构件的精确性和安全性,也优化了生产效率和成本控制。在制作过程中,工程师需要根据图纸进行材料切割、焊接、组装等操作,同时还需遵循安全规范以确保人员和设备的安全。随着技术的发展,数字化技术如计算机辅助设计(CAD)被广泛应用于钢结构生产图纸的创建中,这不仅提高了设计的准确性,还缩短了设计周期。钢结构生产图纸是确保钢结构项目成功的关键因素,它需要与项目管理和现场施工紧密结合,以实现项目的顺利实施。
钢结构生产图纸概述
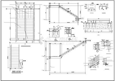
钢结构生产图纸是用于指导钢结构生产过程的重要文件,它包含了钢结构的设计方案、构件尺寸、连接方式等关键信息。这些图纸通常由专业的设计师使用CAD软件绘制,确保设计的精确性和可操作性。钢结构生产图纸主要包括平面布置图、剖面图、立面图、节点图和部件图等。
钢结构生产图纸的组成部分
平面布置图
平面布置图展示了钢结构在水平面上的布局,包括各个构件的位置和相互关系。它是钢结构设计的基础,帮助生产者了解整个结构的平面形态和尺寸。
剖面图
剖面图提供了钢结构在垂直于平面布置图方向上的截面形态和尺寸。通过剖面图,可以清晰地看到结构内部的细节和构件之间的连接方式。
立面图
立面图展示了钢结构在垂直于平面布置图和剖面图方向上的立面形态和尺寸。它有助于理解结构的高度和外观特征。
节点图
节点图专门用于表达钢结构中各个节点的构造和连接方式。这些细节对于保证结构的安全性和稳定性至关重要。
部件图
部件图详细表达了钢结构中各个构件的形态和尺寸。它是生产过程中制造构件的直接依据,确保每个构件都能按照设计要求精确制作。
钢结构生产图纸的符号和标注
钢结构生产图纸中使用了大量的符号和标注,这些符号和标注代表了不同的构件、连接方式、尺寸等信息。例如,角钢(L型钢)、工字钢(I型钢)、H型钢等都有特定的字母代表,而钢板则使用特定的符号来表示不同的材料和尺寸。
如何阅读钢结构生产图纸
阅读钢结构生产图纸需要一定的专业知识和技能。首先,需要了解图纸的基本要素,包括平面图、立面图、剖面图等多个视图,以及标注、尺寸、符号等信息。其次,掌握钢结构图纸中常用的符号和标注,这对于正确理解和解读图纸至关重要。此外,了解正确的阅读顺序也很重要,通常是从平面图开始,逐步查看立面图、剖面图等其他视图,最后仔细阅读标注和尺寸,理解图纸中的具体细节。
钢结构生产图纸的获取途径
钢结构生产图纸可以在专业的建筑网站上找到,例如土木在线提供了大量的钢结构加工图纸和厂房图纸供设计师和工程师下载参考。这些图纸涵盖了各种类型的钢结构项目,包括工业厂房、茶室、厌氧反应器等,可以作为学习和参考的资源。
结论
钢结构生产图纸是钢结构生产过程中的重要指导文件,包含了设计、制造和安装所需的全部信息。通过学习和理解这些图纸,可以有效地指导生产和施工,确保钢结构项目的顺利进行。
钢结构图纸符号标准钢结构设计软件推荐钢结构节点设计要点钢结构生产流程介绍
钢结构生产图纸




还没有评论,来说两句吧...