钢结构屋顶图纸(钢结构屋顶施工流程详解)
温馨提示:这篇文章已超过449天没有更新,请注意相关的内容是否还可用!
钢结构屋顶施工流程包括多个步骤,以确保建筑的质量和安全性。以下是钢结构屋顶施工流程的详细概述:,,1. 准备阶段:在开始施工之前,首先需要对施工现场进行全面的准备和检查。这包括确保所有必要的许可和批准都已获得,以及现场的清理工作。,,2. 设计审查:施工前,必须对钢结构屋顶的设计进行详细的审查。这包括确保设计的合理性、安全性和符合当地的建筑规范。,,3. 材料准备:根据设计要求,准备所需的钢材和其他建筑材料。这些材料应符合相关的质量标准和规格。,,4. 基础施工:在钢结构屋顶施工开始之前,需要先完成基础施工。这包括地基的处理、支撑结构的安装等。,,5. 钢结构安装:按照设计图纸的要求,将钢结构组件吊装到预定位置并进行组装。这包括焊接、螺栓连接等关键步骤。,,6. 屋面系统安装:在钢结构安装完成后,接下来需要进行屋面系统的安装。这包括防水层、保温材料、排水系统等的安装。,,7. 安全检查:在整个施工过程中,需要进行定期的安全检查,以确保施工过程的安全性。,,8. 竣工验收:进行竣工验收,确保钢结构屋顶的质量和性能达到预期的标准。,,通过遵循上述流程,可以确保钢结构屋顶施工的顺利进行,并保证建筑的质量与安全。
钢结构屋顶图纸概述
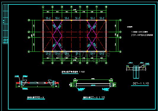
钢结构屋顶的设计和施工通常涉及到一系列详细的图纸和技术说明。这些图纸不仅包括屋顶的整体布局和平面布置,还涵盖了各个组成部分的具体细节,如檩条、支撑、节点等。以下是根据搜索结果整理的一些关键图纸内容:
主要图纸内容
| 图纸名称 | 描述 |
|---|---|
| 屋面檩条布置图 | 展示屋面檩条的布局和尺寸 |
| 屋面支撑系统布置图 | 显示屋面支撑系统的配置和连接方式 |
| 预埋件平面布置图 | 给出预埋件的位置和布置 |
| 钢柱平面布置图 | 表示钢柱的平面位置和排列 |
| 钢梁平面布置图 | 显示钢梁的平面布局和尺寸 |
| 节点详图 | 提供钢结构节点的详细构造和连接方法 |
设计注意事项
在设计钢结构屋顶时,还需要考虑以下几个方面:
| 注意事项 | 描述 |
|---|---|
| 安全等级 | 确保建筑物的安全等级符合标准 |
| 抗震设防烈度 | 符合当地的抗震设防要求 |
| 材料说明 | 提供详细的结构材料说明 |
| 施工规范 | 遵守《钢结构工程施工质量验收规范》 |
如何获取和使用图纸
设计师可以通过专业网站下载相关的CAD图纸,这些图纸通常包含了详尽的设计说明和完整的图纸内容。在使用这些图纸时,需要注意图纸的比例、尺寸标注以及具体的构造细节。此外,对于复杂的钢结构屋顶,可能还需要参考三维模型图纸和节点图纸来更好地理解和实施设计。
综上所述,钢结构屋顶图纸是确保建筑质量和安全的重要文件,它们包含了从整体布局到细部构造的全方位信息。设计师在使用这些图纸时,应当仔细核对各项技术参数和施工要求,以保证最终的建筑成果既美观又实用。
钢结构屋顶设计软件推荐钢结构屋顶施工流程详解钢结构屋顶材料选择指南钢结构屋顶抗震设计要点
钢结构屋顶图纸




还没有评论,来说两句吧...