钢结构的平面图怎么画(绘制钢结构平面图实例分享钢结构平面图实例分享)
钢结构平面图的绘制是建筑和工程领域的重要技能,它有助于工程师和设计师理解并展示钢结构的结构布局。以下是绘制钢结构平面图的基本步骤:,,1. 确定尺寸:根据实际需要,确定钢结构平面图的大小。,2. 画出基础:在图纸上标出建筑物的基础位置,包括柱子、梁和其他支撑结构。,3. 布置柱子:根据设计要求,在图纸上画出柱子的位置和数量。,4. 布置梁:根据梁的分布和连接方式,在图纸上画出梁的位置和形状。,5. 布置支撑结构:根据支撑结构的类型和作用,在图纸上画出支撑结构的位置和形状。,6. 标注细节:在图纸上标注重要的尺寸和细节,如螺栓孔、焊缝等。,7. 检查和修改:仔细检查图纸,确保所有信息准确无误,并进行必要的修改。,,通过以上步骤,可以绘制出一张清晰、准确的钢结构平面图。
如何绘制钢结构的平面图
绘制钢结构的平面图是一项技术性较强的工作,需要一定的专业知识和实践经验。以下是一些步骤和技巧,帮助你更好地完成这项任务:
1.准备工作
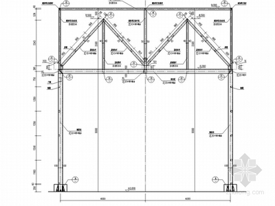
- 学习基本知识:了解钢结构的基本构件代号,如WLT(屋面檩条)、QLT(墙面檩条)、YC(隅撑)、XG(系杆)、SC(水平支撑)、ZC(柱间支撑)、GL(钢梁)、GZ(钢柱)等。
- 熟悉材料和规格:了解H型钢、C型檩条、圆钢等材料的规格和类型,以及焊接方面的知识。
2.工具和软件
- CAD软件:使用AutoCAD或其他专业的CAD软件。如果已有制图基础,掌握CAD的基本命令即可。
- 插件和辅助工具:可以安装一些辅助插件,如浩辰建筑、天正建筑等,提高绘图效率。
3.绘制步骤
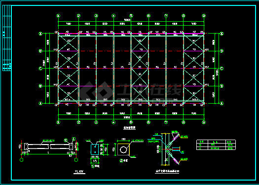
- 创建图层:在CAD中创建不同的图层,分别用于绘制不同的构件,如钢柱、钢梁、檩条等。
- 绘制基础轮廓:根据设计图纸,绘制出建筑物的基础轮廓,包括墙体、柱子等。
- 标注尺寸:标注各构件的尺寸,确保准确无误。
- 绘制构件:
- 钢柱:根据设计要求,绘制钢柱的位置和尺寸。
- 钢梁:绘制钢梁的位置和尺寸,注意梁与柱的连接方式。
- 檩条和系杆:绘制檩条和系杆的位置,确保结构的稳定性和安全性。
- 标注细节:标注各构件的连接方式、材料规格、焊接符号等细节。
- 检查和修正:仔细检查图纸,确保所有构件和尺寸都正确无误。
4.实践和经验
- 多练习:通过多练习,提高绘图速度和准确性。
- 参考图集:参考《03G102-钢结构设计制图深度和表示方法》等图集,了解标准的绘图方法和规范。
- 请教前辈:向有经验的工程师或设计师请教,获取宝贵的建议和指导。
5.注意事项
- 比例一致:确保图纸的比例一致,避免因比例不同导致的误差。
- 清晰标注:所有标注应清晰可见,便于阅读和理解。
- 规范绘图:遵循国家和行业的相关规范,确保图纸的合法性和有效性。
通过以上步骤和技巧,你可以更高效地绘制出高质量的钢结构平面图。希望这些信息对你有所帮助!
钢结构平面图绘图技巧钢结构绘图软件推荐钢结构设计规范查询钢结构平面图实例分享




还没有评论,来说两句吧...