二层楼钢结构设计图
温馨提示:这篇文章已超过515天没有更新,请注意相关的内容是否还可用!
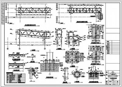
摘要:,本设计图展示了一座二层楼钢结构建筑的详细设计方案。该结构由钢梁、钢柱和支撑系统组成,采用现代钢结构设计理念,以确保建筑的稳固性和美观性。设计考虑了抗震需求,使用了高强度钢材,并采用了合理的布局和连接方式,以减轻地震对建筑的影响。设计还注重环保和能源效率,通过优化材料选择和施工方法,实现了建筑的可持续性。整体设计简洁大方,既满足了功能需求,又具有很高的审美价值。
二层楼钢结构设计图概述
二层楼钢结构设计图通常包括建筑图、结构图、基础图及设计说明等多个部分。这些设计图能够详细展示钢结构办公楼的结构设计、材料选用、施工细节等内容。以下是根据搜索结果整理的关于二层楼钢结构设计图的相关信息。
设计图内容
二层钢结构办公楼的设计图通常包含以下内容:
| 内容 | 描述 |
|---|---|
| 结构设计说明 | 包括钢结构设计的基本参数、材料选用、施工要求等。 |
| 基础平面布置图 | 展示基础的位置、尺寸和构造细节。 |
| 柱脚平面布置图 | 显示柱脚的具体布置和锚栓位置。 |
| 各层结构平面图 | 包括一层、二层的梁、柱结构平面布置图。 |
| 屋面结构布置图 | 展示屋面的支撑、檩条、拉条等布置。 |
| 节点详图 | 提供关键节点的详细构造和连接方式。 |
| 钢架详图 | 包括钢架的整体布置和细节构造。 |
设计图的应用
这些设计图不仅适用于办公楼,也可以作为其他二层钢结构建筑的设计参考。它们可以帮助设计师、工程师和施工人员更好地理解和执行钢结构建筑的施工过程。此外,这些设计图还可以作为教育和培训的资源,帮助初学者了解钢结构设计的基本原理和实践方法。
注意事项
在使用这些设计图时,需要注意它们仅供参考,并且可能需要根据具体的项目要求和当地规范进行调整。此外,由于钢结构的设计涉及到复杂的计算和分析,因此建议由专业的结构工程师进行设计和审核。
综上所述,二层楼钢结构设计图是钢结构建筑设计的重要组成部分,它们提供了详细的结构布置和施工指导,对于确保建筑的安全性和功能性至关重要。在实际应用中,应结合具体情况进行适当调整,并确保设计符合相关的建筑规范和标准。
钢结构设计软件推荐钢结构设计规范查询钢结构施工流程介绍钢结构设计案例分析
二层楼钢结构设计图




还没有评论,来说两句吧...